第1三雄ビル【店舗利用可 13坪】
ここに注目!【内覧可!】【12月16日以降の引き渡し】★狸小路~大通エリアの店舗利用可能な3階13坪テナント!★美容系業種にオススメの物件です!※3階フロアは女性用トイレしかありません。女性向け業態のご出店が望ましいと思われます。区画内に給排水設備の引込はありません。給湯室、トイレは共用です。エレベーターあり。美容室・シェアサロンはNGです。★ 原状回復で間仕切り壁は撤去し、壁紙と床Pタイルは貼り替えになります!★内覧可能です。お気軽にお問合せ下さいませ!★ 【土日祝も営業しています】
| 賃料・費用 |
18万5,900円
(+管理費等 2万8,600円)
敷なし礼なし仲18万5,900円
保証金:101万4,000円
|
|---|---|
| 専有面積 | |
| 住所 | 北海道札幌市中央区南二条西5丁目31-5 |
| 交通 | 大通駅(徒歩9分)|すすきの駅(徒歩6分)|狸小路駅(徒歩4分)|豊水すすきの駅(徒歩11分)|さっぽろ駅(徒歩16分)道順を見る |
| 階/階建 | 3階 / 10階建(地下1階) |
| 築年月 | 築37年(1988年11月) |
| 駐車場 |
なし
|
【WEB面談可】
空室確認、見学、詳細を知りたい方はこちら!
お電話の際は「連合隊の物件」とお伝えください。
情報掲載期限:あと4日(更新日 2025/11/19)
- 物件写真・概要
- 周辺地図
-
【WEB面談可】
空室確認、見学、詳細を知りたい方はこちら!おすすめポイント
- 駅徒歩5分以内
- 複数路線利用可
- 幹線道路沿い
- デザイナーズ
- 敷金・礼金0円
- 出店するなら…この業種がおすすめ!
- 飲食全般(重飲食含む)

- 喫茶・カフェ(軽飲食)

- バー・クラブ・スナック

- 小売・物販

- 美容・健康・介護

- 医療

- 教育・スクール

- 事務所

- アミューズメント

交通色がついているアイコンをクリックすると、本物件までの道順を見ることができます。
- 大通駅札幌市営地下鉄南北線、札幌市営地下鉄東豊線、札幌市営地下鉄東西線徒歩9分(約673m)
- すすきの駅札幌市営地下鉄南北線、札幌市電山鼻線徒歩6分(約466m)
- 狸小路駅札幌市電山鼻線徒歩4分(約300m)
- 豊水すすきの駅札幌市営地下鉄東豊線徒歩11分(約866m)
- さっぽろ駅札幌市営地下鉄南北線、札幌市営地下鉄東豊線、JR札沼線、JR千歳線、JR函館本線徒歩16分(約1.3km)
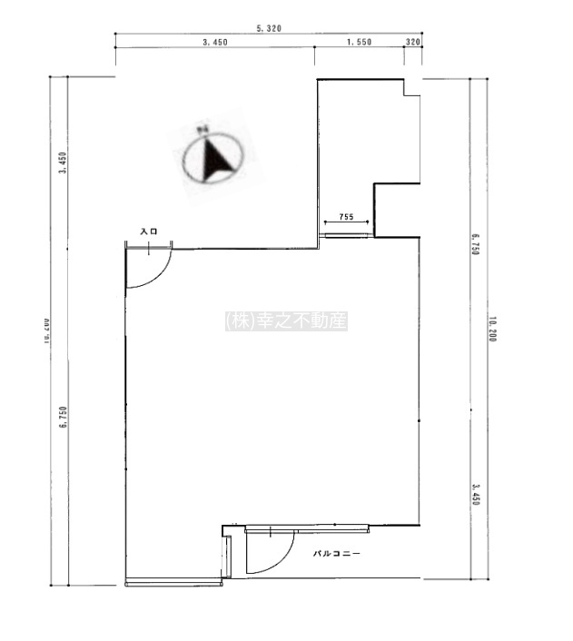
物件概要
所在階/建物の階建 3階(310) / 地上10階 地下1階建 主要採光面 構造 鉄筋コンクリート(RC)造 間取り 契約期間 3年間 更新料/更新手数料 2万2,000円 権利金 住宅保険 出店推奨業種 美容・健康・介護、教育・スクール、事務所 出店不可業種 その他費用 毎月の費用 - 電気基本料:1万1,000円
- 水道基本料:2,200円
一時金 - 初回保証料:34万1,550円
引渡し 相談(2026年12月中旬引渡し可) 管理人 取引態様 仲介 物件No 設備・特徴 - 幹線道路沿い
- 複数路線利用可
- エレベーター
- デザイナーズ
- エアコン付
備考 3階フロアは女性専用トイレのため、女性向け業態店が望ましいです、契約時看板書換料実費支払いあり、保証会社利用必須、業種相談 主な周辺施設色がついているアイコンをクリックすると、本物件までの道順を見ることができます。
-
ホームページはこちら北海道知事 石狩(1) 第9236号
(株)幸之不動産 【WEB面談可】
※連合隊は物件情報の精度向上に努めています:「物件情報に誤りがある」「成約済みである」などお気付きの点がございましたらこちらよりご連絡ください。
写真枚数:10枚
他フロアの参考写真です