東雁来8-1【一棟貸し P10台】
ここに注目!車種により10台前後駐車可能!丘珠空港通り沿いの一棟貸し78坪です!【1階39坪、2階39坪】倉庫・事務所にオススメです。その他使用用途はご相談となります!2025年12月26日以降の引渡し予定です。早期引き渡しもご相談ください! 内覧可能です。お気軽にお問合せ下さい! 【土日祝も営業中】
| 賃料・費用 |
43万4,500円
(+管理費等 -円)
坪単価:約5,512円/坪
敷118万5,000円礼43万4,500円(1ヶ月)仲43万4,500円
|
|---|---|
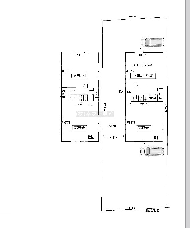
| 専有面積 | 260.64m² (78.84坪) |
| 住所 | 北海道札幌市東区東雁来八条1丁目7-22 |
| 交通 | 元町駅(徒歩60分)|新道東駅(徒歩60分)|栄町駅(徒歩62分)|環状通東駅(徒歩66分)|苗穂駅(徒歩66分)道順を見る |
| 階/階建 | 2階建 |
| 築年月 | 築33年(1992年7月) |
| 駐車場 |
あり 駐車可能台数:10台
|
【WEB面談可】
空室確認、見学、詳細を知りたい方はこちら!
お電話の際は「連合隊の物件」とお伝えください。
情報掲載期限:あと6日(更新日 2025/11/24)
- 物件写真・概要
- 周辺地図
-
【WEB面談可】
空室確認、見学、詳細を知りたい方はこちら!おすすめポイント
- 幹線道路沿い
- 駐車2台以上可
- 男女別トイレ
- 出店するなら…この業種がおすすめ!
- 飲食全般(重飲食含む)

- 喫茶・カフェ(軽飲食)

- バー・クラブ・スナック

- 小売・物販

- 美容・健康・介護

- 医療

- 教育・スクール

- 事務所

- アミューズメント

その他…倉庫
交通色がついているアイコンをクリックすると、本物件までの道順を見ることができます。
- 元町駅札幌市営地下鉄東豊線徒歩60分(約4.8km)
- 新道東駅札幌市営地下鉄東豊線徒歩60分(約4.8km)
- 栄町駅札幌市営地下鉄東豊線徒歩62分(約4.9km)
- 環状通東駅札幌市営地下鉄東豊線徒歩66分(約5.3km)
- 苗穂駅JR千歳線、JR函館本線徒歩66分(約5.3km)
物件概要
建物の階建 地上2階建 総戸数 構造 鉄骨造 間取り 契約期間 3年間 権利金 住宅保険 出店推奨業種 教育・スクール、事務所、その他(倉庫) 出店不可業種 用途地域 - 準住居地域
その他費用 一時金 - 初回保証料:43万4,500円
引渡し 相談(2025年12月26日以降予定) 管理人 取引態様 仲介 物件No 設備・特徴 - 幹線道路沿い
- 前面ガラス張り
- 男女別トイレ
備考 事務所、倉庫、店舗など使用用途相談。保証会社利用の場合があります。 主な周辺施設色がついているアイコンをクリックすると、本物件までの道順を見ることができます。
-
ホームページはこちら北海道知事 石狩(1) 第9236号
(株)幸之不動産 【WEB面談可】
※連合隊は物件情報の精度向上に努めています:「物件情報に誤りがある」「成約済みである」などお気付きの点がございましたらこちらよりご連絡ください。
写真枚数:2枚