コート南円山【路面店 P3台無料】
ここに注目!【12月末退去予定】南円山エリアの飲食店居抜き物件27坪!駐車場3台無料!(店舗前1台、側面ピロティー2台) 引渡し状態確認中です。人気エリアの飲食店居抜き物件です。お早めにお問合せくださいませ! 【土日祝も営業中】
| 賃料・費用 |
27万5,000円
(+管理費等 なし)
坪単価:約9,928円/坪
敷75万円礼なし仲27万5,000円
|
|---|---|
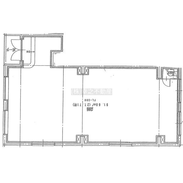
| 専有面積 | 91.6m² (27.7坪) |
| 住所 | 北海道札幌市中央区南五条西25丁目2-5 |
| 交通 | 円山公園駅(徒歩9分)|西線6条駅(徒歩16分)|西18丁目駅(徒歩18分)|西線9条旭山公園通駅(徒歩21分)|西15丁目駅(徒歩22分)道順を見る |
| 階/階建 | 路面 / 4階建 |
| 築年月 | 築24年(2001年8月) |
| 駐車場 |
無料 駐車可能台数:3台
店舗前1台、側面ピロティー2台 |
【WEB面談可】
空室確認、見学、詳細を知りたい方はこちら!
お電話の際は「連合隊の物件」とお伝えください。
情報掲載期限:あと8日(更新日 2025/12/2)
- 物件写真・概要
- 周辺地図
-
【WEB面談可】
空室確認、見学、詳細を知りたい方はこちら!おすすめポイント
- 路面店
- 複数路線利用可
- 幹線道路沿い
- デザイナーズ
- 出店するなら…この業種がおすすめ!
- 飲食全般(重飲食含む)

- 喫茶・カフェ(軽飲食)

- バー・クラブ・スナック

- 小売・物販

- 美容・健康・介護

- 医療

- 教育・スクール

- 事務所

- アミューズメント

交通色がついているアイコンをクリックすると、本物件までの道順を見ることができます。
- 円山公園駅札幌市営地下鉄東西線徒歩9分(約694m)
- 西線6条駅札幌市電山鼻線徒歩16分(約1.3km)
- 西18丁目駅札幌市営地下鉄東西線徒歩18分(約1.4km)
- 西線9条旭山公園通駅札幌市電山鼻線徒歩21分(約1.7km)
- 西15丁目駅札幌市電山鼻線徒歩22分(約1.7km)
物件概要
所在階/建物の階建 1階 / 地上4階建 主要採光面 構造 鉄筋コンクリート(RC)造 間取り 契約期間 権利金 住宅保険 出店推奨業種 飲食全般(重飲食含む)、小売・物販、美容・健康・介護 出店不可業種 用途地域 - 準住居地域
その他費用 毎月の費用 - 町内会費:200円
一時金 - 初回保証料:27万200円
引渡し 相談 管理人 取引態様 仲介 物件No 設備・特徴 - 複数路線利用可
- 幹線道路沿い
- デザイナーズ
- 前面ガラス張り
- 路面店
備考 重飲食相談、引渡し状態確認、保証会社利用必須 主な周辺施設色がついているアイコンをクリックすると、本物件までの道順を見ることができます。
-
ホームページはこちら北海道知事 石狩(1) 第9236号
(株)幸之不動産 【WEB面談可】
※連合隊は物件情報の精度向上に努めています:「物件情報に誤りがある」「成約済みである」などお気付きの点がございましたらこちらよりご連絡ください。
写真枚数:6枚