N4.N.Y(エヌヨンエヌワイ)【一棟貸し】
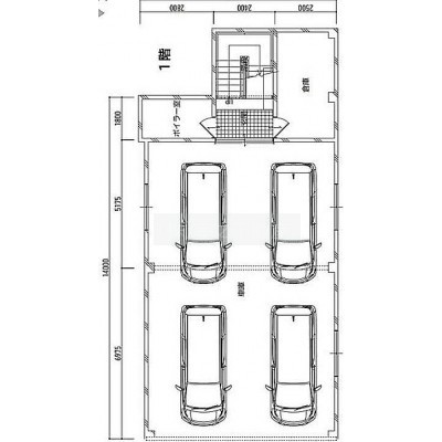
ここに注目!店舗利用相談可能な一棟貸し物件108坪!【各フロア約35坪程度です】1階ピロティ—に普通車は6台、軽自動車9台程度駐車可能です。天高は約2.5mです!【飲食店はNGです。事務所以外に学習塾、美容系業種等の業種も相談可!】現状はスケルトンですが、壁・床・天井は貸主様にて内装を行って頂けます!※その他内装は貸主様指定業者にて施工となります。詳細はお問合せ下さい。内覧可能です!【土日祝も営業中】
この物件の契約期間は 10年間です。
定期借家物件は、賃貸借契約期間満了後、原則として契約の更新ができない物件です。再契約の可否については不動産会社にお問合せください。
| 賃料・費用 |
97万9,000円
(+管理費等 なし)
坪単価:約9,011円/坪
敷890万円礼97万9,000円(1ヶ月)仲97万9,000円
|
|---|---|
| 専有面積 | 359.19m² (108.65坪) |
| 住所 | 北海道札幌市中央区北四条西12丁目1-35 |
| 交通 | 桑園駅(徒歩12分)|西11丁目駅(徒歩12分)|西15丁目駅(徒歩13分)|西18丁目駅(徒歩17分)|札幌駅(徒歩18分)道順を見る |
| 階/階建 | 3階建 |
| 築年月 | 築25年(2000年5月) |
| 駐車場 |
無料 駐車可能台数:9台
軽自動車の場合9台、普通車の場合は6台程度可 |
【WEB面談可】
空室確認、見学、詳細を知りたい方はこちら!
お電話の際は「連合隊の物件」とお伝えください。
情報掲載期限:あと9日(更新日 2025/11/24)
- 物件写真・概要
- 周辺地図
-
【WEB面談可】
空室確認、見学、詳細を知りたい方はこちら!おすすめポイント
- 複数路線利用可
- スケルトン
- デザイナーズ
- 袖看板あり
- 出店するなら…この業種がおすすめ!
- 飲食全般(重飲食含む)

- 喫茶・カフェ(軽飲食)

- バー・クラブ・スナック

- 小売・物販

- 美容・健康・介護

- 医療

- 教育・スクール

- 事務所

- アミューズメント

※出店不可の業種:飲食全般
交通色がついているアイコンをクリックすると、本物件までの道順を見ることができます。
- 桑園駅JR札沼線、JR函館本線徒歩12分(約884m)
- 西11丁目駅札幌市電山鼻線、札幌市営地下鉄東西線徒歩12分(約953m)
- 西15丁目駅札幌市電山鼻線徒歩13分(約1.1km)
- 西18丁目駅札幌市営地下鉄東西線徒歩17分(約1.4km)
- 札幌駅札幌市営地下鉄南北線、札幌市営地下鉄東豊線、JR札沼線、JR千歳線、JR函館本線徒歩18分(約1.5km)
物件概要
建物の階建 地上3階建 総戸数 1戸 構造 鉄骨造 間取り 契約期間 定期借家(10年間) 権利金 住宅保険 出店推奨業種 美容・健康・介護、教育・スクール、事務所 出店不可業種 飲食全般 用途地域 - 商業地域
引渡し 相談 管理人 取引態様 仲介 物件No 設備・特徴 - 複数路線利用可
- デザイナーズ
- 24時間利用可
- スケルトン
- 袖看板あり
備考 内装は貸主業者にて施工となります。(B工事)、保証会社利用をお願いする場合があります 主な周辺施設色がついているアイコンをクリックすると、本物件までの道順を見ることができます。
-
ホームページはこちら北海道知事 石狩(1) 第9236号
(株)幸之不動産 【WEB面談可】
※連合隊は物件情報の精度向上に努めています:「物件情報に誤りがある」「成約済みである」などお気付きの点がございましたらこちらよりご連絡ください。
写真枚数:25枚