ONE札幌ステーションタワー
ここに注目!札幌駅から地下通路で直結。15番出口を出るとすぐ目の前にそびえるこのタワーマンションに初めて足を踏み入れた瞬間、「ここに住んだらどんな暮らしになるだろう」とわくわくが止まりませんでした。エントランスはホテルライクな雰囲気で、日常に少しの非日常感を添えてくれます。 お部屋は南西向きの角部屋で、窓が大きく、日差しがたっぷりと入ってきます。特に印象的だったのが、26畳のリビング。想像以上の広さで、ここに立つだけで心がふっと軽くなったような感覚でした。天井が高く、空間にゆとりがあるので、家族がそれぞれの時間を過ごしながらも、自然とリビングに集まれるような、そんな優しさを感じます。エアコンは2台設置されており、冷暖房の効きも十分。夏の蒸し暑さも、冬の厳しい寒さも、この空間ならストレスなく過ごせそうです。 キッチンは3.8畳の広さがあり、対面式で家族の様子を見ながら料理ができます。IHクッキングヒーター、ディスポーザー、食洗機などが完備されていて、忙しい朝や夕方でも家事をスムーズにこなせる動線が整っています。
| 賃料・費用 |
69万円(+管理費等 -円)
敷69万円(1ヶ月)礼69万円(1ヶ月)仲なし
|
|---|---|
| 間取・専有 |
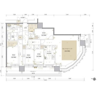
4LDK(117.13m²)└ LD26帖 K3.8帖 洋室9帖 洋室6帖 洋室5帖 洋室5帖
|
| 住所 | 北海道札幌市北区北八条西 (詳細非公開) |
| 交通 | 札幌駅(徒歩4分)|「北7条東1丁目」停(徒歩5分)|さっぽろ駅(徒歩4分) |
| 築年月 | 築2年(2023年12月) |
| 駐車場 |
あり
|
【WEB面談可】
空室確認、見学、詳細を知りたい方はこちら!
お電話の際は「連合隊の物件」とお伝えください。
情報掲載期限:あと27日(更新日 2025/12/21)
- 物件写真・概要
- 周辺地図
-
▼クリックで左の拡大画像が変わります。 すべての写真を拡大
【WEB面談可】
空室確認、見学、詳細を知りたい方はこちら!おすすめポイント
- バス/トイレ別
- オートロック
- 2階以上
- 都市ガス
- 室内洗濯機置場
- 駐車場あり
- エアコン付
- 独立洗面台
- 追い焚き風呂
- ペット相談可
- デザイナーズ
- 敷金・礼金0円
- 近くて便利!徒歩5分以内にある施設
- 5分
5分
交通
- 札幌駅札幌市営地下鉄南北線、札幌市営地下鉄東豊線、JR札沼線、JR千歳線、JR函館本線徒歩4分(約300m)
- 「北7条東1丁目」停徒歩5分(約400m)
- さっぽろ駅札幌市営地下鉄南北線、札幌市営地下鉄東豊線、JR札沼線、JR千歳線、JR函館本線徒歩4分(約300m)
物件概要
所在階/建物の階建 43階 / 地上48階建 総戸数 主要採光面 南西 構造 鉄筋コンクリート(RC)造 バルコニー あり(22.63m²)契約期間 3年間 住宅保険 入居可能時期 相談 管理人 取引態様 仲介 物件No 設備・特徴 - IHクッキングヒーター
- バス/トイレ別
- 温水洗浄トイレ
- 独立洗面台
- シャワー付洗面化粧台
- 追い焚き風呂
- エアコン付
- 床暖房
- モニタ付インターホン
- BSアンテナ
- CSアンテナ
- ブロードバンド回線(光ファイバー等の高速インターネット)
- 納戸・トランクルーム
- ペット相談可
- デザイナーズ
- 保証人不要
- シニア相談可
- 2人入居相談可(ルームシェア含む)
- 日当り良好
- カウンターキッチン
- コンロ3口以上
- 食器洗乾燥機
- 宅配BOX
- エレベーター
- 駐輪場
- バイク置き場
- ウォークインクローゼット
- フローリング
- シューズボックス
- ロードヒーティング
- 複数路線利用可
- 事務所可
- 家賃保証会社利用可
- 猫相談可
- その他:システムキッチン・IHヒーター・都市ガス・トイレ/バス別・ウォシュレット・洗面化粧台・シャンプードレッサー・浴室乾燥機・追い焚き・公共下水・エアコン・ガス暖房・床暖・オートロック・TVインターホン・防犯カメラ・BS・CS・光回線・バルコニー・トランクルーム・
備考 バルコニーはL字型に広がっていて、リビングからも洋室からもアクセス可能。南西向きのため、午後のあたたかな日差しを浴びながら植物を育てたり、ペットとくつろいだりといった時間も楽しめそうです。ペット可物件であることに加え、足洗い場まで設けられているのも嬉しい配慮。帰宅時のちょっとした手間がなくなることで、気持ちにもゆとりが持てそうです。 共用施設にはコワーキングスペースやパーティールーム、来客用宿泊施設もあり、「暮らす」以上の価値を感じました。 学区
- 札幌市立北九条小学校約238m(徒歩3分)
- 私立藤女子中学校約1.1km(徒歩14分)
- 札幌市立北辰中学校約1.5km(徒歩18分)
- その他の学区:札幌市立 北九条小学校 238m 藤女子中学校 1061m 札幌市立 北辰中学校 1419m
主な周辺施設
- 愛和えるむ保育園約284m(徒歩4分)
- ニチイキッズさっぽろ保育園約368m(徒歩5分)
- 天使大学約1.1km(徒歩13分)
- 藤女子大学 北16条キャンパス約1.1km(徒歩14分)
- エスタ大食品街約581m(徒歩8分)
- まいばすけっと 北9条東2丁目店約382m(徒歩5分)
- コープさっぽろ北12条店約592m(徒歩8分)
- セイコーマート くぼた店約599m(徒歩8分)
- ファミリーマート 札幌北4条東1丁目店約745m(徒歩10分)
- セブンイレブン 札幌北13条東駅前店約683m(徒歩9分)
-
ホームページはこちら
北海道知事 石狩(3) 第7584号
(株)さくらの不動産 【WEB面談可】- 加入団体
- (公社)北海道宅地建物取引業協会
- 保証協会
- (公社)全国宅地建物取引業保証協会
- 公正取引協議会
- (一社)北海道不動産公正取引協議会
※連合隊は物件情報の精度向上に努めています:「物件情報に誤りがある」「成約済みである」などお気付きの点がございましたらこちらよりご連絡ください。
写真枚数:25枚
札幌市立 北九条小学校まで238m
天使大学まで1008m
藤女子大学 北16条キャンパスまで1061m
コープさっぽろ北12条店まで592m
どんなお部屋をお探しですか?お気軽なご相談、大歓迎です!ご来店お待ちしております♪♪
店内は全室個室型の4室を構え、家族連れや働く女性など様々なライフスタイルの方にもゆっくり寛いでもらえるプライベートスペースを実現。 ▼お部屋探しのすべての物件がオンライン内覧で対応可能