アービス新富Ⅰ・Ⅱ
ここに注目!☆★お部屋のおすすめポイントがこちら★☆ ●システムキッチン ●2台駐車場無料 ●マンション2LDK こんな素敵なお部屋が待っています!お気軽にお問い合わせください★お理想の住まいを一緒に探しましょう‼
| 賃料・費用 |
7万円(+管理費等 -円)
敷なし礼なし仲7万7,000円
保証金:なし
|
|---|---|
| 間取・専有 |
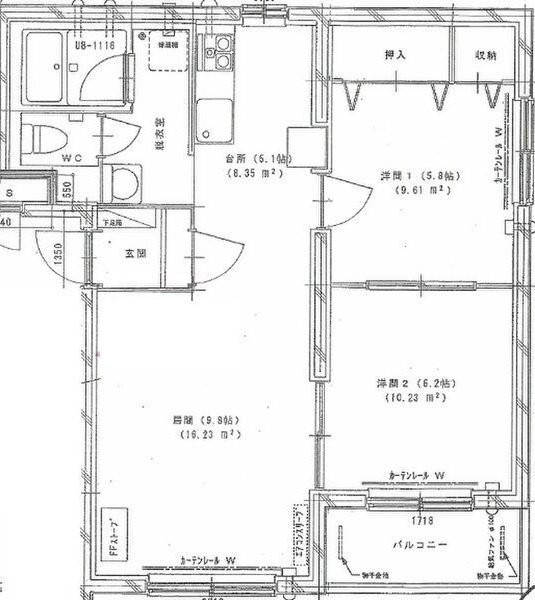
2LDK(58.31m²)└ LDK14.9帖
|
| 住所 | 北海道北広島市新富町西3丁目2-8 |
| 交通 | 北広島駅(徒歩17分) |
| 築年月 | 築23年(2002年9月) |
| 駐車場 |
あり (無料) 駐車可能台数:2台
|
【WEB面談可】
空室確認、見学、詳細を知りたい方はこちら!
お電話の際は「連合隊の物件」とお伝えください。
新着 情報掲載期限:あと30日(更新日 2026/2/11)
- 物件写真・概要
- 周辺地図
-
【WEB面談可】
空室確認、見学、詳細を知りたい方はこちら!おすすめポイント
- バス/トイレ別
- オートロック
- 2階以上
- 都市ガス
- 室内洗濯機置場
- 駐車2台以上可
- エアコン付
- 独立洗面台
- 追い焚き風呂
- ペット相談可
- デザイナーズ
- 敷・礼・保0円
- 近くて便利!徒歩5分以内にある施設
- 4分
4分- 2分
2分- 周辺施設を地図で確認
交通色がついているアイコンをクリックすると、本物件までの道順を見ることができます。
物件概要
所在階/建物の階建 1階(1B) / 地上3階建 総戸数 6戸 主要採光面 南 構造 鉄筋コンクリート(RC)造 契約期間 2年間 住宅保険 1万6,000円(2年間) 入居可能時期 相談 管理人 取引態様 仲介 物件No 設備・特徴 - バス/トイレ別
- 温水洗浄トイレ
- 独立洗面台
- シャワー付洗面化粧台
- モニタ付インターホン
- ブロードバンド回線(光ファイバー等の高速インターネット)
- 照明器具付
- 納戸・トランクルーム
- 2人入居相談可(ルームシェア含む)
- 日当り良好
- シューズボックス
- 家賃保証会社利用可
- その他:システムキッチン・LPガス・トイレ/バス別・ウォシュレット・洗面化粧台・シャンプードレッサー・公共下水・灯油暖房・TVインターホン・光回線・照明・室内洗濯機置場・バルコニー・トランクルーム・駐輪場・上下水道・電気
備考 室内清掃費用 27500円 夜間サポート費 1100円(月額) 普段お使いのクレジットカードで初期費用の決済が可能!ポイントが貯まります!リボ払いや分割払い3・6・12・24回が利用でき、WEBでのお手続きですので24時間どこでもご利用できます!お問い合わせ後に弊社スタッフが、現地ご案内でお伺いする事も可能です!お問い合わせ・空室の確認は0123-29-7744♪お部屋探しはいい部屋ネット恵庭店にお任せ下さい♪ 主な周辺施設色がついているアイコンをクリックすると、本物件までの道順を見ることができます。
-
ホームページはこちら
北海道知事 石狩(1) 第9159号
いい部屋ネット恵庭店 (株)CLOUD9 【WEB面談可】- 保証協会
- (公社)不動産保証協会
- 公正取引協議会
- (一社)北海道不動産公正取引協議会
※連合隊は物件情報の精度向上に努めています:「物件情報に誤りがある」「成約済みである」などお気付きの点がございましたらこちらよりご連絡ください。
写真枚数:12枚
恵庭市・千歳市・苫小牧市の不動産のお部屋探しは、≪いい部屋ネット恵庭店≫で♪・
恵庭市を中心に不動産を取り扱っております。オンラインのご相談、ご案内も可能です。お客様専用駐車場が御座います。初めてのお引越しやファミリーのお部屋探しなど、何でもご相談下さい。