ジュノール千歳真々地
ここに注目!☆★お部屋のおすすめポイントがこちら★☆ ●新築マンション1F~5F募集中! ●1F居室のみペット飼育可 ●都市ガス物件♪システムキッチン(3口) こんな素敵なお部屋が待っています!お気軽にお問い合わせください★お理想の住まいを一緒に探しましょう‼
| 賃料・費用 |
12万2,000円(+管理費等 7,000円)
敷12万2,000円(1ヶ月)礼12万2,000円(1ヶ月)仲13万4,200円
保証金:なし
|
|---|---|
| 間取・専有 |
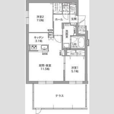
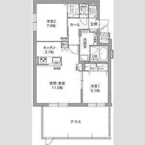
2LDK(61.65m²)└ LD11.5帖 K3.1帖 洋室5.1帖 洋室7帖
|
| 住所 | 北海道千歳市真々地2丁目2-16 |
| 交通 | 千歳駅(徒歩27分) |
| 築年月 | 新築(2026年2月) |
| 駐車場 |
あり (9,900円/台)
|
【WEB面談可】
空室確認、見学、詳細を知りたい方はこちら!
お電話の際は「連合隊の物件」とお伝えください。
情報掲載期限:あと28日(更新日 2026/4/27)
- 物件写真・概要
- 周辺地図
-
【WEB面談可】
空室確認、見学、詳細を知りたい方はこちら!おすすめポイント
- バス/トイレ別
- オートロック
- 2階以上
- 都市ガス
- 室内洗濯機置場
- 駐車場あり
- エアコン付
- 独立洗面台
- 追い焚き風呂
- ペット相談可
- デザイナーズ
- 敷金・礼金0円
- 近くて便利!徒歩5分以内にある施設
- 2分
2分- 周辺施設を地図で確認
交通色がついているアイコンをクリックすると、本物件までの道順を見ることができます。
物件概要
所在階/建物の階建 1階(105) / 地上5階建 総戸数 25戸 主要採光面 南西 構造 鉄筋コンクリート(RC)造 契約期間 2年間 住宅保険 2万3,000円(2年間) 入居可能時期 2026年3月1日 管理人 取引態様 仲介 物件No 設備・特徴 - ガスコンロ
- バス/トイレ別
- 温水洗浄トイレ
- 独立洗面台
- シャワー付洗面化粧台
- 追い焚き風呂
- エアコン付
- モニタ付インターホン
- BSアンテナ
- その他インターネット
- 照明器具付
- ペット相談可
- インターネット利用料無料
- コンロ3口以上
- 納戸・トランクルーム
- 宅配BOX
- エレベーター
- 駐輪場
- バイク置き場
- ウォークインクローゼット
- シューズボックス
- ロードヒーティング
- 家賃保証会社利用可
- その他:システムキッチン・ガスキッチン・都市ガス・トイレ/バス別・ウォシュレット・洗面化粧台・シャンプードレッサー・浴室乾燥機・追い焚き・公共下水・エアコン・ガス暖房・オートロック・TVインターホン・防犯カメラ・BS・インターネット・照明・バルコニー・トランクル
備考 町内会費 400円(月額) 普段お使いのクレジットカードで初期費用の決済が可能!ポイントが貯まります!リボ払いや分割払い3・6・12・24回が利用でき、WEBでのお手続きですので24時間どこでもご利用できます!お問い合わせ後に弊社スタッフが、現地ご案内でお伺いする事も可能です!お問い合わせ・空室の確認は0123-29-7744♪お部屋探しはいい部屋ネット恵庭店にお任せ下さい♪ 学区色がついているアイコンをクリックすると、本物件までの道順を見ることができます。
主な周辺施設色がついているアイコンをクリックすると、本物件までの道順を見ることができます。
-
ホームページはこちら
北海道知事 石狩(1) 第9159号
いい部屋ネット恵庭店 (株)CLOUD9 【WEB面談可】〒061-1417
TEL:0123-29-7744(賃貸物件についてお問合せ先)
FAX:0123-21-9186
営業時間:9:30~18:00
定休日:毎週 火曜・水曜
- 保証協会
- (公社)不動産保証協会
- 公正取引協議会
- (一社)北海道不動産公正取引協議会
※連合隊は物件情報の精度向上に努めています:「物件情報に誤りがある」「成約済みである」などお気付きの点がございましたらこちらよりご連絡ください。
写真枚数:23枚
恵庭市・千歳市・苫小牧市の不動産のお部屋探しは、≪いい部屋ネット恵庭店≫で♪・
恵庭市を中心に不動産を取り扱っております。オンラインのご相談、ご案内も可能です。お客様専用駐車場が御座います。初めてのお引越しやファミリーのお部屋探しなど、何でもご相談下さい。