ビラ・フロディア 【1階】
ここに注目!◆2025年10月完成予定!◆飲食、サロン、クリニック等業種はお気軽にご相談ください!※物販は不可となります。◆地下鉄「豊水すすきの」駅徒歩2分!
| 賃料・費用 |
89万8,700円
(+管理費等 なし)
坪単価:約3.3万円/坪
敷540万円礼なし仲89万8,700円
保証金:なし
|
|---|---|
| 専有面積 | 89.75m² (27.14坪) |
| 住所 | 北海道札幌市中央区南三条西2丁目1-5 |
| 交通 | 豊水すすきの駅(徒歩3分)|すすきの駅(徒歩4分)|狸小路駅(徒歩5分) |
| 階/階建 | 路面 / 11階建 |
| 築年月 | 築1年未満(2025年10月) |
| 駐車場 |
なし
|
【WEB面談可】
空室確認、見学、詳細を知りたい方はこちら!
お電話の際は「連合隊の物件」とお伝えください。
情報掲載期限:あと18日(更新日 2025/12/3)
- 物件写真・概要
- 周辺地図
-
【WEB面談可】
空室確認、見学、詳細を知りたい方はこちら!おすすめポイント
- 路面店
- 駅徒歩3分以内
- 複数路線利用可
- 駅前立地
- スケルトン
- 出店するなら…この業種がおすすめ!
- 飲食全般(重飲食含む)

- 喫茶・カフェ(軽飲食)

- バー・クラブ・スナック

- 小売・物販

- 美容・健康・介護

- 医療

- 教育・スクール

- 事務所

- アミューズメント

交通色がついているアイコンをクリックすると、本物件までの道順を見ることができます。
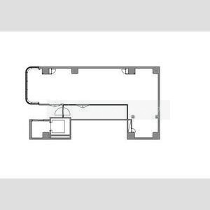
物件概要
所在階/建物の階建 1階 / 地上11階建 主要採光面 構造 鉄骨造 間取り 契約期間 権利金 住宅保険 出店推奨業種 飲食全般(重飲食含む)、喫茶・カフェ(軽飲食)、美容・健康・介護 出店不可業種 その他費用 毎月の費用 - 警備料:8,800円
引渡し 期日指定 管理人 取引態様 仲介 物件No 設備・特徴 - 複数路線利用可
- 駅前立地
- スケルトン
- 路面店
備考 -
ホームページはこちら
北海道知事 石狩(7) 第5890号
(株)オフィス トップ 【WEB面談可】〒060-0002
TEL:011-231-5531
FAX:011-231-1631
営業時間:9:00~18:00
定休日:毎週 土曜・日曜・祝日
- 加入団体
- (公社)北海道宅地建物取引業協会
- 保証協会
- (公社)全国宅地建物取引業保証協会
※連合隊は物件情報の精度向上に努めています:「物件情報に誤りがある」「成約済みである」などお気付きの点がございましたらこちらよりご連絡ください。
写真枚数:3枚
テナント仲介専門で創業から30年!まずは、信頼と実績のオフィストップにご相談ください!!
おかげさまで、長年にわたり、たくさんの出会いを重ねることができました。お客様の想いを実現するべストパートナーとして「お客様から選ばれ続ける」会社を目指してまいります。