☆別府市石垣東8丁目 スカイタウン別府 11階部分!南向き!2LDK!共同温泉付!
ここに注目!☆共同温泉付マンション!石垣東8丁目!人気エリア!広々2LDKタイプ!11階部分!南向き!日当り良好!オートロック、エレベーター有り!分譲マンション!眺望良好!コンビニ、金融機関、郵便局、公園等が徒歩圏に充実!
| 賃料・費用 |
6万3,000円(+管理費等 なし)
敷12万6,000円(2ヶ月)礼なし仲6万9,300円
保証金:なし/敷引・償却金:なし
|
|---|---|
| 間取・専有 |
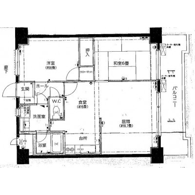
2LDK(61.2m²)
|
| 住所 | 大分県別府市石垣東8丁目 |
| 交通 | 「石垣8丁目」停 (徒歩3分) |
| 築年月 | 築35年(1990年3月) |
| 駐車場 |
近隣月極駐車場
|
空室確認、見学、詳細を知りたい方はこちら!
お電話の際は「連合隊の物件」とお伝えください。
情報掲載期限:あと25日(更新日 2025/12/21)
- 物件写真・概要
- 周辺地図
-
空室確認、見学、詳細を知りたい方はこちら!
おすすめポイント
- バス/トイレ別
- オートロック
- 2階以上
- 都市ガス
- 室内洗濯機置場
- 駐車場あり
- エアコン付
- 独立洗面台
- 追い焚き風呂
- ペット相談可
- デザイナーズ
- 敷金・礼金0円
- 近くて便利!徒歩5分以内にある施設
- 3分
3分- 周辺施設を地図で確認
交通
- 「石垣8丁目」停 徒歩3分
物件概要
所在階/建物の階建 11階(1103) / 地上14階建 総戸数 主要採光面 南 構造 鉄骨鉄筋コンクリート(SRC)造 バルコニー あり- バルコニー南向き
契約期間 2年間 更新料/更新手数料 なし 住宅保険 1万9,000円(2年間) 入居可能時期 相談 管理人 日勤 取引態様 仲介 物件No 設備・特徴 - 分譲タイプ
- 日当り良好
- バス/トイレ別
- ガスコンロ
- オートロック
- 温泉付
- エレベーター
- 室内洗濯機置場
- フローリング
- シューズボックス
- 都市ガス
備考 賃貸保証会社/ジェイリース加入要 ペット不可 学区色がついているアイコンをクリックすると、本物件までの道順を見ることができます。
主な周辺施設色がついているアイコンをクリックすると、本物件までの道順を見ることができます。
-
ホームページはこちら
大分県知事 (9) 第1761号
日光不動産(有)
※連合隊は物件情報の精度向上に努めています:「物件情報に誤りがある」「成約済みである」などお気付きの点がございましたらこちらよりご連絡ください。
写真枚数:26枚
☆売却物件大募集中!買取物件も募集しています!査定のみでももちろんOKです!お気軽にお電話ください♪
※定休日 不定休(お盆期間、年末年始、ゴールデンウィークは休業致します) ☆当社となりの無人展示場もご利用ください♪ 売却物件・買取物件大募集! お気軽にご相談下さい♪