都町3丁目ビル
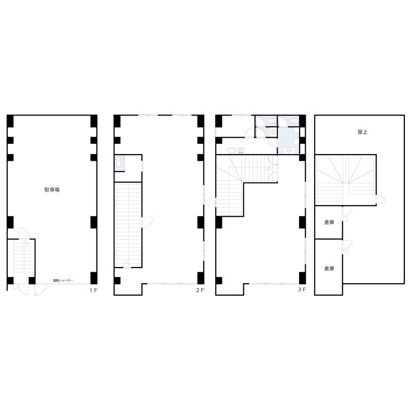
ここに注目!197号線沿い、昭和通りに面した1棟貸のビルになります。1階部分が駐車場になっており、配置の仕方によっては5台くらいは駐車できます。その他すぐ横に有料駐車場もあり、車両を使用する業種でも問題ないです。
| 賃料・費用 |
55万円
(+管理費等 -円)
坪単価:約5,379円/坪
敷なし礼100万円仲55万円
保証金:なし
|
|---|---|
| 専有面積 | 338.02m² (102.25坪) |
| 住所 | 大分県大分市都町3-1-10 |
| 交通 | |
| 階/階建 | 4階建 |
| 築年月 | 築53年(1972年9月) |
| 駐車場 |
あり 駐車可能台数:5台
駐車台数は現地要確認 |
空室確認、見学、詳細を知りたい方はこちら!
お電話の際は「連合隊の物件」とお伝えください。
情報掲載期限:あと30日(更新日 2025/12/26)
- 物件写真・概要
- 周辺地図
-
▼クリックで左の拡大画像が変わります。 すべての写真を拡大
空室確認、見学、詳細を知りたい方はこちら!
おすすめポイント
- 幹線道路沿い
- 駐車2台以上可
- エアコン付
- 出店するなら…この業種がおすすめ!
- 飲食全般(重飲食含む)

- 喫茶・カフェ(軽飲食)

- バー・クラブ・スナック

- 小売・物販

- 美容・健康・介護

- 医療

- 教育・スクール

- 事務所

- アミューズメント

※出店不可の業種:飲食全般
物件概要
建物の階建 地上4階建 総戸数 構造 鉄筋コンクリート(RC)造 間取り 契約期間 2年間 権利金 なし 住宅保険 お問合せください 出店推奨業種 美容・健康・介護、医療、事務所 出店不可業種 飲食全般 引渡し 相談 管理人 取引態様 仲介 物件No 25-1-22-N 設備・特徴 - 幹線道路沿い
- エアコン付
- 24時間利用可
備考 賃貸保証会社要加入 短期解約違約金あり 主な周辺施設色がついているアイコンをクリックすると、本物件までの道順を見ることができます。
-
ホームページはこちら
大分県知事 (6) 第2537号
ジー・アール・シー(株) 府内店〒870-0021
TEL:097-534-8448
FAX:097-534-8449
営業時間:9:30~17:00
定休日:毎週 月曜・日曜・祝日
- 保証協会
- (公社)全国宅地建物取引業保証協会
- 公正取引協議会
- (一社)九州不動産公正取引協議会
※連合隊は物件情報の精度向上に努めています:「物件情報に誤りがある」「成約済みである」などお気付きの点がございましたらこちらよりご連絡ください。
写真枚数:25枚
ビル前景
駐車場
入口
駐車場
2F
2F
2F
2F
2F
2F
3F
3F
3F
3F
3F
3F
屋上
屋上
屋上倉庫
セブンイレブン
大分市役所
大分銀行本店
大分中央郵便局
大分エリアの不動産のことなら弊社にお任せください! 不動産を通じて、創業53年!
豊富な知識とおもてなしの精神でスタッフが、あなたにぴったりの不動産を見つけます!リノベーション物件多数!テナント情報も豊富!お気軽にお問合せいただくとともに、心よりお電話、メールお待ちしております!