ふじ田5.7ビル1階店舗
ここに注目!すすきのエリア1階店舗の空き予定です。今は寿司店営業中です。スケルトンで引き渡し予定、敷地内駐車場は普通車5台利用可能(賃料に駐車場代含む)内覧希望のお客様は当店までご連絡ください。
この物件の契約期間は 2年間です。
定期借家物件は、賃貸借契約期間満了後、原則として契約の更新ができない物件です。再契約の可否については不動産会社にお問合せください。
| 賃料・費用 |
55万円
(+管理費等 -円)
坪単価:約1.7万円/坪
敷300万円礼なし仲55万円
保証金:なし/敷引・償却金:なし
|
|---|---|
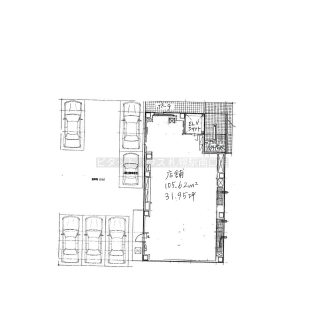
| 専有面積 | 105.62m² (31.95坪) |
| 住所 | 北海道札幌市中央区南五条西7丁目2-6 |
| 交通 | 東本願寺前駅(徒歩4分)|資生館小学校前駅(徒歩4分)|すすきの駅(徒歩8分)道順を見る |
| 階/階建 | 路面 / 8階建 |
| 築年月 | |
| 駐車場 |
あり 駐車可能台数:5台
敷地内駐車場は賃料に含む |
【WEB面談可】
空室確認、見学、詳細を知りたい方はこちら!
お電話の際は「連合隊の物件」とお伝えください。
新着 情報掲載期限:あと29日(更新日 2026/3/14)
- 物件写真・概要
- 周辺地図
-
【WEB面談可】
空室確認、見学、詳細を知りたい方はこちら!おすすめポイント
- 路面店
- 駅徒歩5分以内
- 幹線道路沿い
- 駐車2台以上可
- スケルトン
- 出店するなら…この業種がおすすめ!
- 飲食全般(重飲食含む)

- 喫茶・カフェ(軽飲食)

- バー・クラブ・スナック

- 小売・物販

- 美容・健康・介護

- 医療

- 教育・スクール

- 事務所

- アミューズメント

交通色がついているアイコンをクリックすると、本物件までの道順を見ることができます。
物件概要
所在階/建物の階建 1階 / 地上8階建 主要採光面 西 構造 鉄骨造 間取り その他その他 契約期間 定期借家(2年間) 更新料/更新手数料 なし 権利金 なし 住宅保険 出店推奨業種 飲食全般(重飲食含む) 出店不可業種 接道状況 一方 引渡し 相談(2026年6月以降) 管理人 無 取引態様 代理 物件No 設備・特徴 - 幹線道路沿い
- スケルトン
- 路面店
備考 すすきのエリアの1階路面店、飲食店可です。今はお寿司屋さんが営業中です。内覧希望のお客様はお問合せください。調整いたします。 主な周辺施設色がついているアイコンをクリックすると、本物件までの道順を見ることができます。
-
ホームページはこちら
北海道知事 石狩(4) 第7613号
スターツ北海道(株) ピタットハウス札幌駅南口店 【WEB面談可】〒060-0004
北海道札幌市中央区北四条西5丁目1番地
アスティ45ビル 3階TEL:011-299-2233
FAX:011-299-2257
営業時間:10:00~18:00
定休日:毎週 水曜
- 加入団体
- (一社)全国住宅産業協会
- 保証協会
- 営業保証金供託済
※連合隊は物件情報の精度向上に努めています:「物件情報に誤りがある」「成約済みである」などお気付きの点がございましたらこちらよりご連絡ください。
写真枚数:10枚
札幌市近郊のテナント・オフィス・店舗探しならスターツ北海道㈱ピタットハウス札幌駅南口店へ !
札幌全域でテナント情報発信中、長く続くお店にするためのテナント探しのお手伝い致します。立地条件・賃料希望・広さ等、諸条件お知らせ下さい!アスティ45ビルに駐車場も完備、お気軽にお越しください!