北郷四条八丁目テナント1階
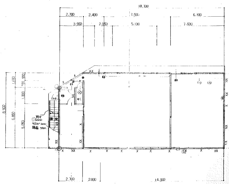
ここに注目!新道沿い、北郷47坪テナントです!2026年1月末空き予定。事務所約15.6坪、倉庫約25.4坪、トイレなど約6坪。敷地内5台前後駐車可能。電気、トイレ、流し台、上下水道あり。飲食業NG。諸条件お問い合わせください!
| 賃料・費用 |
38万5,000円
(+管理費等 -円)
坪単価:約8,159円/坪
敷105万円礼なし仲38万5,000円
保証金:なし
|
|---|---|
| 専有面積 | 156m² (47.19坪) |
| 住所 | 北海道札幌市白石区北郷四条8丁目8-26 |
| 交通 | 平和駅(車で4分)道順を見る |
| 階/階建 | 1階 / 2階建 |
| 築年月 | 築35年(1990年7月) |
| 駐車場 |
あり 駐車可能台数:5台
敷地内5台前後駐車可能。 |
空室確認、見学、詳細を知りたい方はこちら!
お電話の際は「連合隊の物件」とお伝えください。
新着 情報掲載期限:あと28日(更新日 2026/1/15)
- 物件写真・概要
- 周辺地図
-
空室確認、見学、詳細を知りたい方はこちら!
おすすめポイント
- 駐車2台以上可
- 幹線道路沿い
交通色がついているアイコンをクリックすると、本物件までの道順を見ることができます。
物件概要
所在階/建物の階建 1階 / 地上2階建 主要採光面 構造 木造 間取り 契約期間 3年間 権利金 住宅保険 出店推奨業種 出店不可業種 その他費用 毎月の費用 - 24時間管理費:1,100円
一時金 - 保証会社ユーセン初回保証料:57万7,500円
- 室内清掃費用 契約時:11万円
引渡し 2026年2月初旬 管理人 取引態様 仲介 物件No 設備・特徴 - 幹線道路沿い
- 給排水設備
備考 主な周辺施設色がついているアイコンをクリックすると、本物件までの道順を見ることができます。
-
ホームページはこちら
北海道知事 石狩(2) 第8739号
アールジー(株)
※連合隊は物件情報の精度向上に努めています:「物件情報に誤りがある」「成約済みである」などお気付きの点がございましたらこちらよりご連絡ください。
写真枚数:5枚