新川倉庫A棟・B棟・C棟・D棟
ここに注目!新川30坪新築倉庫です。2025年12月完成予定。4棟あり、数棟の同時契約も可能です!電気、井戸水、トイレあり。諸条件等お問い合わせください!
| 賃料・費用 |
22万円
(+管理費等 -円)
坪単価:約7,334円/坪
敷60万円礼なし仲22万円
|
|---|---|
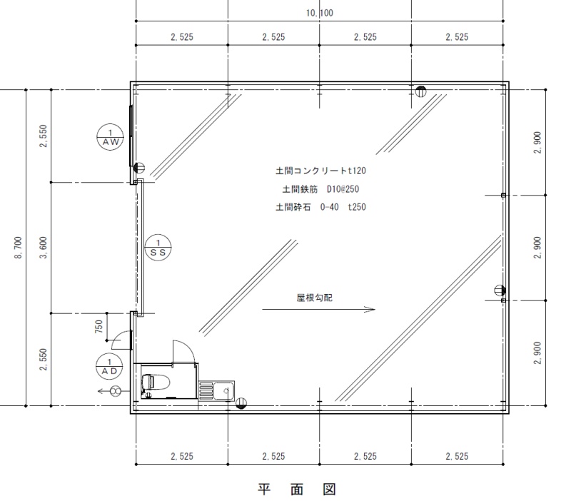
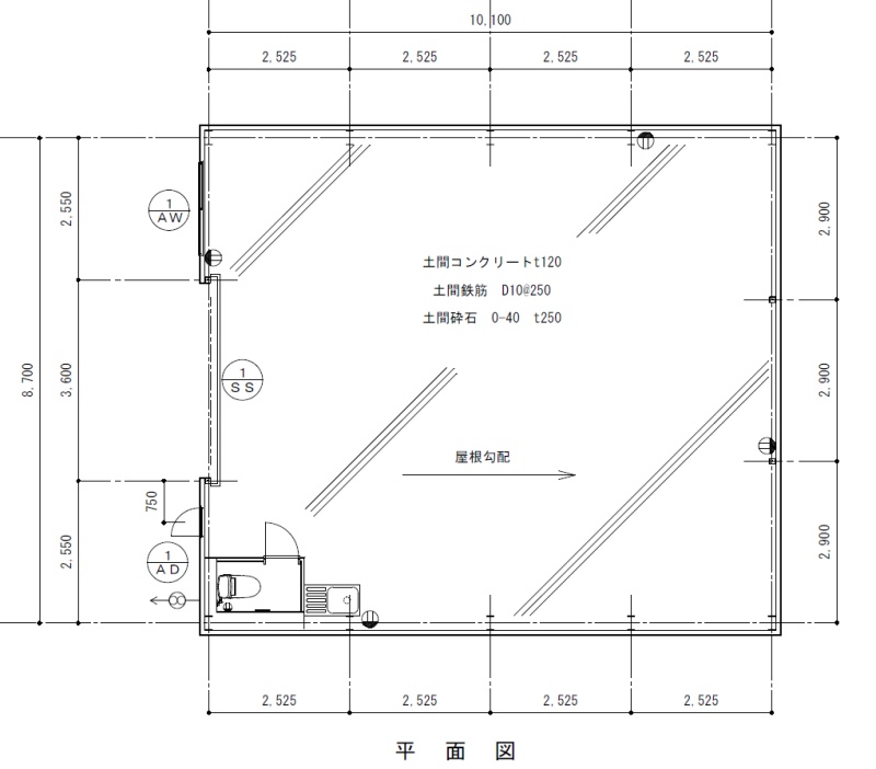
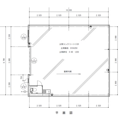
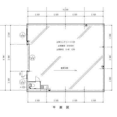
| 専有面積 | 99.18m² (30坪) |
| 住所 | 北海道札幌市北区新川 (詳細非公開) |
| 交通 | 発寒駅(車で10分) |
| 階/階建 | 1階建 |
| 築年月 | 築1年未満(2025年12月) |
| 駐車場 |
あり
|
空室確認、見学、詳細を知りたい方はこちら!
お電話の際は「連合隊の物件」とお伝えください。
情報掲載期限:あと27日(更新日 2025/12/16)
- 物件写真・概要
- 周辺地図
-
空室確認、見学、詳細を知りたい方はこちら!
おすすめポイント
- 駐車場あり
- 平屋
交通
- 発寒駅JR函館本線車10分(約3.9km)
物件概要
所在階/建物の階建 地上1階建 主要採光面 構造 鉄骨造 間取り 契約期間 3年間 権利金 住宅保険 出店推奨業種 出店不可業種 その他費用 その他 - Casa初回保証:22万円
引渡し 2026年1月初旬 管理人 取引態様 仲介 物件No 設備・特徴 - 平屋
備考 主な周辺施設
- セイコーマート新川西店約1.4km(徒歩18分)
- セブンイレブン札幌新川西3条店約1.5km(徒歩18分)
- 札幌新琴似七条郵便局約1.5km(徒歩18分)
-
ホームページはこちら
北海道知事 石狩(2) 第8739号
アールジー(株)
※連合隊は物件情報の精度向上に努めています:「物件情報に誤りがある」「成約済みである」などお気付きの点がございましたらこちらよりご連絡ください。
写真枚数:3枚