恵庭市戸磯555倉庫 右T022/左T021
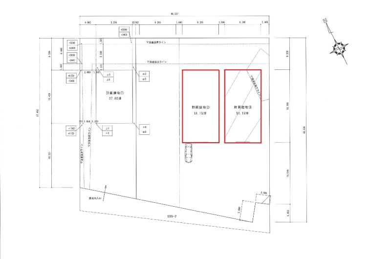
ここに注目!国道36号線沿いの好立地!ビジネスの可能性を広げる貸倉庫・貸工場が恵庭市戸磯に誕生します。 人気の高い恵庭・千歳エリアに位置し、JRサッポロビール庭園駅まで車で7分とアクセスもスムーズ。2025年10月完成予定の鉄骨造平屋は、約51坪の広々とした空間が魅力です。 敷地内には無料駐車場を6台前後可能で、車両の多い業種にも便利。現在2棟ございますので、事業規模に合わせてまとめてご契約いただくこともご検討ください。新しい環境で効率的なビジネス展開を始めてみませんか? 諸条件や詳細について、ぜひお気軽にお問い合わせください。
| 賃料・費用 |
33万円
(+管理費等 -円)
坪単価:約6,452円/坪
敷90万円礼なし仲33万円
|
|---|---|
| 専有面積 | 169.1m² (51.15坪) |
| 住所 | 北海道恵庭市戸磯555-1 |
| 交通 | サッポロビール庭園駅(車で7分)道順を見る |
| 階/階建 | 1階建 |
| 築年月 | 築1年未満(2025年10月) |
| 駐車場 |
あり 駐車可能台数:6台
敷地内6台前後駐車可能。 |
空室確認、見学、詳細を知りたい方はこちら!
お電話の際は「連合隊の物件」とお伝えください。
情報掲載期限:あと29日(更新日 2025/12/4)
- 物件写真・概要
- 周辺地図
-
空室確認、見学、詳細を知りたい方はこちら!
おすすめポイント
- 駐車2台以上可
- 平屋
- 幹線道路沿い
交通色がついているアイコンをクリックすると、本物件までの道順を見ることができます。
物件概要
所在階/建物の階建 地上1階建 主要採光面 構造 鉄骨造 間取り 契約期間 3年間 権利金 住宅保険 出店推奨業種 出店不可業種 引渡し 2025年11月初旬 管理人 取引態様 仲介 物件No 設備・特徴 - 幹線道路沿い
- 平屋
備考 -
ホームページはこちら
北海道知事 石狩(2) 第8739号
アールジー(株)
※連合隊は物件情報の精度向上に努めています:「物件情報に誤りがある」「成約済みである」などお気付きの点がございましたらこちらよりご連絡ください。
写真枚数:7枚