台場新築倉庫
ここに注目!旭川市台場に新築倉庫物件です。A棟60坪倉庫、電気、上下水道、トイレ、流し台。敷地アスファルト舗装。B棟60坪倉庫を2分割30坪(賃料165,000円税込)設備はA棟と一緒になります。事務所造作、中2階の設置等相談可能です。物件詳細、諸条件等はお問い合わせください。
| 賃料・費用 |
30万8,000円
(+管理費等 -円)
坪単価:約5,134円/坪
敷84万円礼なし仲30万8,000円
保証金:なし/敷引・償却金:なし
|
|---|---|
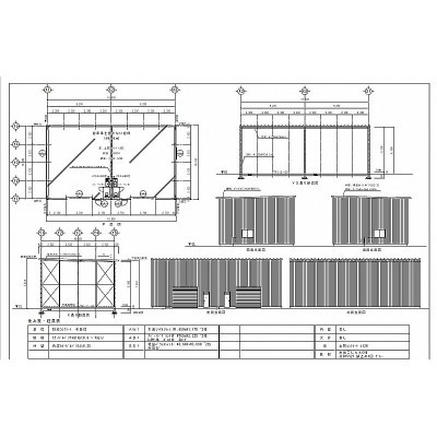
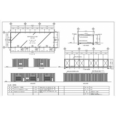
| 専有面積 | 198.35m² (60坪) |
| 住所 | 北海道旭川市台場1条4丁目123-15 |
| 交通 | 伊納駅(徒歩25分) |
| 階/階建 | 1階建 |
| 築年月 | 築1年未満(2025年9月) |
| 駐車場 |
あり 駐車可能台数:7台
|
空室確認、見学、詳細を知りたい方はこちら!
お電話の際は「連合隊の物件」とお伝えください。
情報掲載期限:あと28日(更新日 2025/12/18)
- 物件写真・概要
- 周辺地図
-
空室確認、見学、詳細を知りたい方はこちら!
おすすめポイント
- 駐車2台以上可
- 平屋
- 大型車進入可
交通色がついているアイコンをクリックすると、本物件までの道順を見ることができます。
物件概要
所在階/建物の階建 地上1階建 主要採光面 構造 鉄骨造 間取り 契約期間 3年間 更新料/更新手数料 なし 権利金 なし 住宅保険 出店推奨業種 出店不可業種 その他費用 その他 - Casa初回保証料:30万8,000円
引渡し 相談 管理人 取引態様 仲介 物件No 設備・特徴 - 平屋
- 大型車進入可
- 照明器具付
- 給排水設備
備考 主な周辺施設色がついているアイコンをクリックすると、本物件までの道順を見ることができます。
-
ホームページはこちら
北海道知事 石狩(2) 第8739号
アールジー(株)
※連合隊は物件情報の精度向上に努めています:「物件情報に誤りがある」「成約済みである」などお気付きの点がございましたらこちらよりご連絡ください。
写真枚数:3枚