ノーザンハット 【 1階空室! 】
ここに注目!☆美原2丁目!手入れの行き届いた美室1LDK!!☆とても程度の良いお部屋です^^☆銀行・郵便局・病院・交番などなど便利で安心出来る施設が近くにございます!☆毎日の炊事洗濯などオール電化が支えます^^火のない生活で安全!!☆新社会人さんにもオススメです!百聞は一見に如かず^^案内予約は【賃貸ハウス函館店 ㈱レバレッジ】0138-76-7276まで^^
| 賃料・費用 |
5万円(+管理費等 なし)
敷なし礼5万円(1ヶ月)仲5万5,000円
保証金:なし/敷引・償却金:なし
|
|---|---|
| 間取・専有 |
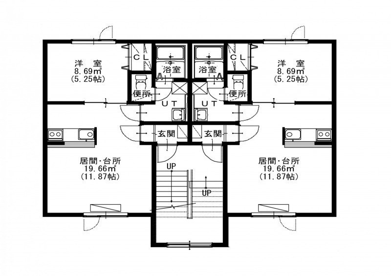
1LDK(37.88m²)└ LDK11.87帖 洋室5.25帖
|
| 住所 | 北海道函館市美原2丁目10番3号 |
| 交通 | 函館バス「亀田支所前(ヤマダ電機前)」停 (徒歩4分) |
| 築年月 | 築20年(2005年2月) |
| 駐車場 |
あり 駐車可能台数:1台
|
空室確認、見学、詳細を知りたい方はこちら!
お電話の際は「連合隊の物件」とお伝えください。
情報掲載期限:あと24日(更新日 2025/12/19)
- 物件写真・概要
- 周辺地図
-
空室確認、見学、詳細を知りたい方はこちら!
おすすめポイント
- バス/トイレ別
- オートロック
- 2階以上
- 都市ガス
- 室内洗濯機置場
- 駐車場あり
- エアコン付
- 独立洗面台
- 追い焚き風呂
- ペット相談可
- デザイナーズ
- 敷金・礼金0円
交通
- 函館バス「亀田支所前(ヤマダ電機前)」停 徒歩4分(約290m)
物件概要
所在階/建物の階建 1階(102) / 地上2階建 総戸数 4戸 主要採光面 北西 構造 木造 契約期間 2年間 更新料/更新手数料 なし / 1万1,000円 住宅保険 1万8,000円(2年間) その他費用 毎月の費用 - NCV受信料:220円
一時金 - 退去時清掃料:2万7,500円
入居可能時期 即時 管理人 巡回 取引態様 仲介 物件No 設備・特徴 - 物置
- 角部屋
- 照明器具付
- 室内洗濯機置場
- フローリング
- シューズボックス
- バス/トイレ別
- 温水洗浄トイレ
- 独立洗面台
- シャワー付洗面化粧台
- IHクッキングヒーター
- コンロ2口
- 電気暖房
- 24時間換気システム
- 電気温水器
- 家賃保証会社利用可
- オール電化
備考 ◇保証会社必須【初回保証料:賃料の50%、月額手数料:賃料の1%】 ◇室内写真は別室の物を使用しております。 ◇間取・設備等は現況を優先いたします。 ◇退去時は借主様負担で大家指定業者のハウスクリーニング料がかかります。 ◇ぜひ一度ご覧ください^^お問い合わせお待ちしており 学区色がついているアイコンをクリックすると、本物件までの道順を見ることができます。
主な周辺施設色がついているアイコンをクリックすると、本物件までの道順を見ることができます。
-
※連合隊は物件情報の精度向上に努めています:「物件情報に誤りがある」「成約済みである」などお気付きの点がございましたらこちらよりご連絡ください。
写真枚数:21枚

































【楽賃サービス】 ◇無料送迎 ◇契約金のカード決済 ◇写真たっぷりやサイズを測ります! 当社のいろんなサービス是非、ご利用ください!