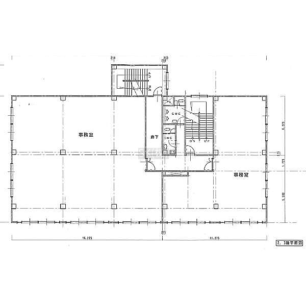
白央ビル【3F】
ここに注目!😊【白石区・白石エリア】地下鉄 白石駅から徒歩8分の3階テナント(94.9坪)でございます😊環状通に面した事務所向け物件!!敷地内駐車場複数台空きあり(台数要確認)。広々95坪の最上階ワンフロア!!エアコン・暖房(都市ガス)・昇降機あり、事務所にオススメの物件です!!店舗系は不可。内覧希望等は遠慮なくご連絡ください。
| 賃料・費用 |
52万2,500円
(+管理費等 6万2,700円)
坪単価:約5,502円/坪
敷142万5,000円礼なし仲52万2,500円
|
|---|---|
| 専有面積 | 314m² (94.98坪) |
| 住所 | 北海道札幌市白石区中央一条7丁目10-23 |
| 交通 | 白石駅(徒歩8分)道順を見る |
| 階/階建 | 3階 / 3階建 |
| 築年月 | 築50年(1975年7月) |
| 駐車場 |
あり (1万1,000円/台)
駐車場台数都度確認、冬期間除雪負担金有 |
【WEB面談可】
空室確認、見学、詳細を知りたい方はこちら!
お電話の際は「連合隊の物件」とお伝えください。
新着 情報掲載期限:あと29日(更新日 2026/3/3)
- 物件写真・概要
- 周辺地図
-
【WEB面談可】
空室確認、見学、詳細を知りたい方はこちら!おすすめポイント
- 即入居可
- 商店街に面す
- 幹線道路沿い
- 駐車場あり
- エアコン付
- 出店するなら…この業種がおすすめ!
- 飲食全般(重飲食含む)

- 喫茶・カフェ(軽飲食)

- バー・クラブ・スナック

- 小売・物販

- 美容・健康・介護

- 医療

- 教育・スクール

- 事務所

- アミューズメント

交通色がついているアイコンをクリックすると、本物件までの道順を見ることができます。
物件概要
所在階/建物の階建 3階(3階ワンフロア) / 地上3階建 主要採光面 構造 鉄骨鉄筋コンクリート(SRC)造 間取り 契約期間 2年間 権利金 住宅保険 出店推奨業種 事務所 出店不可業種 引渡し 即時 管理人 取引態様 仲介 物件No TG03031 設備・特徴 - 幹線道路沿い
- 商店街に面す
- 給排水設備
- ガス設備
- エアコン付
- ガス暖房
- 男女別トイレ(共用部)
備考 大型物件 ワンフロア物件 商店街に面す 事務所 オフィス ☆賃料等の諸条件ご相談くださいませ。 札幌市内すべてのテナントをご紹介致します! 主な周辺施設色がついているアイコンをクリックすると、本物件までの道順を見ることができます。
-
※連合隊は物件情報の精度向上に努めています:「物件情報に誤りがある」「成約済みである」などお気付きの点がございましたらこちらよりご連絡ください。
写真枚数:30枚