コルテナⅡ
ここに注目!大型商業施設に空きが出ました。近隣にはロピアさんなども出店し、人の流れも盛んになりつつあるエリアです。ご内覧など、お気軽にお申し付けくださいませ。
この物件の契約期間は 5年間です。
定期借家物件は、賃貸借契約期間満了後、原則として契約の更新ができない物件です。再契約の可否については不動産会社にお問合せください。
| 賃料・費用 |
49万8,366円
(+管理費等 11万748円)
坪単価:約9,900円/坪
敷271万8,360円仲49万8,366円
|
|---|---|
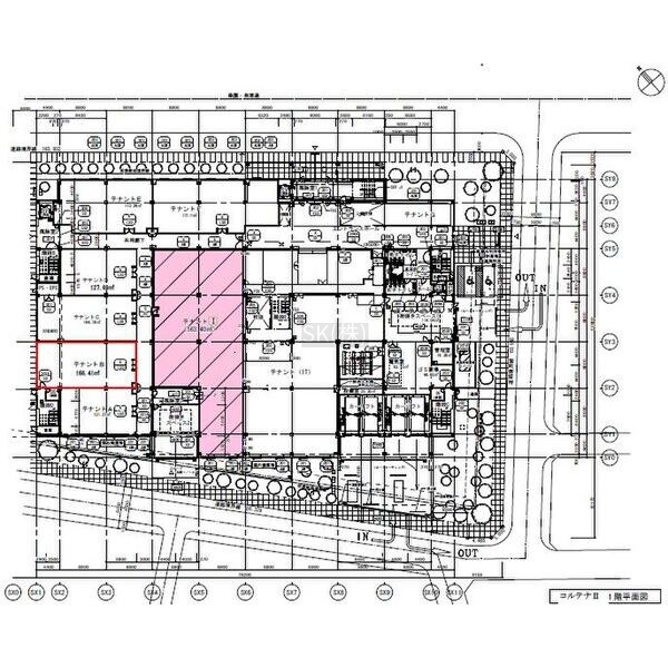
| 専有面積 | 166.42m² (50.34坪) |
| 住所 | 北海道札幌市西区琴似四条2丁目1-2 |
| 交通 | 琴似駅(徒歩8分)|琴似駅(徒歩11分)|発寒中央駅(徒歩16分)|発寒南駅(徒歩18分)道順を見る |
| 階/階建 | 1階 |
| 築年月 | |
| 駐車場 |
【WEB面談可】
空室確認、見学、詳細を知りたい方はこちら!
お電話の際は「連合隊の物件」とお伝えください。
情報掲載期限:あと20日(更新日 2025/12/28)
- 物件写真・概要
- 周辺地図
-
【WEB面談可】
空室確認、見学、詳細を知りたい方はこちら!おすすめポイント
- 即入居可
交通色がついているアイコンをクリックすると、本物件までの道順を見ることができます。
物件概要
所在階/建物の階建 1階( 1T-B) 主要採光面 構造 鉄骨造 間取り 契約期間 定期借家(5年間) 権利金 住宅保険 出店推奨業種 出店不可業種 引渡し 即時 管理人 取引態様 仲介 物件No 設備・特徴 備考 主な周辺施設色がついているアイコンをクリックすると、本物件までの道順を見ることができます。
-
※連合隊は物件情報の精度向上に努めています:「物件情報に誤りがある」「成約済みである」などお気付きの点がございましたらこちらよりご連絡ください。
写真枚数:5枚
【すべてはお客様の事業成功のために】
皆様、感謝してます!! テナントに関することならなんでもお気軽にご相談くださいませ。😊今日も皆様の笑顔のためにがんばります!😊