サザンシティ30 【1F】
ここに注目!😊【東区・北光線エリア】東8丁目篠路通に面した1階路面テナント(17.5坪)でございます😊敷地内駐車場3台縦列可(軽含む※ピロティ)&室内リフォーム済み!!事務所はもちろん、サービス系店舗等にもオススメの物件です!!業種相談可。内覧希望等は遠慮なくご連絡ください。
| 賃料・費用 |
10万4,500円
(+管理費等 なし)
坪単価:約5,958円/坪
敷50万円礼なし仲10万4,500円
|
|---|---|
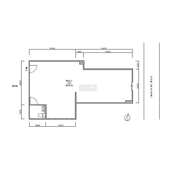
| 専有面積 | 58m² (17.54坪) |
| 住所 | 北海道札幌市東区北三十条東7丁目2-16 |
| 交通 | 新道東駅(徒歩18分)道順を見る |
| 階/階建 | 路面 / 3階建 |
| 築年月 | 築38年(1987年4月) |
| 駐車場 |
あり 駐車可能台数:3台
縦列3台可能(軽含む)で16,500円 ※ピロティ |
【WEB面談可】
空室確認、見学、詳細を知りたい方はこちら!
お電話の際は「連合隊の物件」とお伝えください。
情報掲載期限:あと7日(更新日 2025/11/25)
- 物件写真・概要
- 周辺地図
-
【WEB面談可】
空室確認、見学、詳細を知りたい方はこちら!おすすめポイント
- 即入居可
- 路面店
- 商店街に面す
- 幹線道路沿い
- 駐車2台以上可
- エアコン付
- 出店するなら…この業種がおすすめ!
- 飲食全般(重飲食含む)

- 喫茶・カフェ(軽飲食)

- バー・クラブ・スナック

- 小売・物販

- 美容・健康・介護

- 医療

- 教育・スクール

- 事務所

- アミューズメント

※出店不可の業種:飲食全般
交通色がついているアイコンをクリックすると、本物件までの道順を見ることができます。
物件概要
所在階/建物の階建 1階(1階路面テナント 102) / 地上3階建 主要採光面 構造 鉄骨造 間取り 契約期間 3年間 権利金 住宅保険 出店推奨業種 美容・健康・介護、教育・スクール、事務所 出店不可業種 飲食全般 引渡し 即時 管理人 取引態様 仲介 物件No TF10281 設備・特徴 - 商店街に面す
- 幹線道路沿い
- エアコン付
- 路面店
- 前面ガラス張り
備考 1階路面店 前面ガラス張り オフィス 事務所 サービス系店舗 福祉系 ☆賃料等の諸条件ご相談くださいませ。 札幌市内すべてのテナントをご紹介致します! 主な周辺施設色がついているアイコンをクリックすると、本物件までの道順を見ることができます。
-
※連合隊は物件情報の精度向上に努めています:「物件情報に誤りがある」「成約済みである」などお気付きの点がございましたらこちらよりご連絡ください。
写真枚数:30枚
【すべてはお客様の事業成功のために】
皆様、感謝してます!! テナントに関することならなんでもお気軽にご相談くださいませ。😊今日も皆様の笑顔のためにがんばります!😊