タシロビル
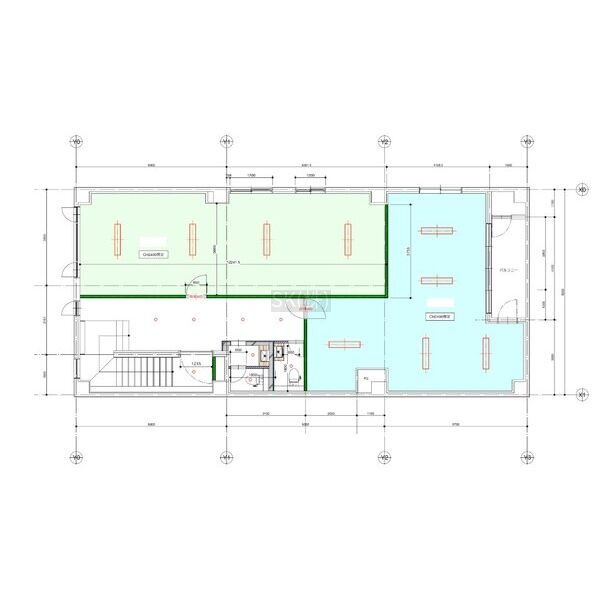
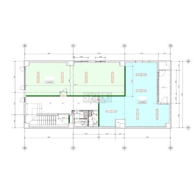
ここに注目!中央区のテナントでございます。物販から軽飲食、オフィス、理美容、クリニックなど、幅広い業種でのご利用が可能です。3階は2区画空いておりますので、ワンフロア最大40坪に拡張も可能です。 室内はスケルトンのため、お客様の思い描くイメージに合わせて、自由に空間をデザインできる点が魅力。複数路線利用可能な利便性の良い立地で、近隣にはコンビニが徒歩1分、スーパーも徒歩2分と、日々の業務や集客に嬉しい環境が整っています。 事業拡大や新規出店をお考えの方にぜひご検討いただきたい物件です。賃料等の諸条件もご相談を承りますので、まずはお気軽にお問い合わせください。
この物件の契約期間は 5年間です。
定期借家物件は、賃貸借契約期間満了後、原則として契約の更新ができない物件です。再契約の可否については不動産会社にお問合せください。
| 賃料・費用 |
31万8,472円
(+管理費等 -円)
坪単価:約1.5万円/坪
敷86万8,560円礼31万8,472円(1ヶ月)仲31万8,472円
|
|---|---|
| 専有面積 | 68.37m² (20.68坪) |
| 住所 | 北海道札幌市中央区南三条西8丁目4-11 |
| 交通 | |
| 階/階建 | 3階 / 4階建(地下1階) |
| 築年月 | 築38年(1987年7月) |
| 駐車場 |
【WEB面談可】
空室確認、見学、詳細を知りたい方はこちら!
お電話の際は「連合隊の物件」とお伝えください。
情報掲載期限:あと10日(更新日 2025/12/3)
- 物件写真・概要
- 周辺地図
-
【WEB面談可】
空室確認、見学、詳細を知りたい方はこちら!おすすめポイント
- 即入居可
- 複数路線利用可
- スケルトン
物件概要
所在階/建物の階建 3階(A) / 地上4階 地下1階建 主要採光面 構造 鉄筋コンクリート(RC)造 間取り 契約期間 定期借家(5年間) 権利金 住宅保険 出店推奨業種 出店不可業種 引渡し 即時 管理人 取引態様 仲介 物件No 610082 設備・特徴 - 複数路線利用可
- スケルトン
備考 ワンフロア物件 おすすめ業種: 飲食店 バー オフィス 事務所 理美容 福祉系 クリニック その他 札幌市内すべてのテナントをご紹介致します! ☆賃料等の諸条件ご相談くださいませ。 他にも非公開物件を多数ご用意しております! 主な周辺施設色がついているアイコンをクリックすると、本物件までの道順を見ることができます。
-
※連合隊は物件情報の精度向上に努めています:「物件情報に誤りがある」「成約済みである」などお気付きの点がございましたらこちらよりご連絡ください。
写真枚数:8枚
【すべてはお客様の事業成功のために】
皆様、感謝してます!! テナントに関することならなんでもお気軽にご相談くださいませ。😊今日も皆様の笑顔のためにがんばります!😊