F-works南郷【1F】※新築
ここに注目!😊【白石区・南郷18丁目エリア】地下鉄 南郷18丁目駅から徒歩5分の新築1階路面テナント(16.2坪)でございます😊南郷通に面した視認性の良い角地路面店!!エアコン・ガス暖房あり、事務所や各種店舗にオススメの物件です!!※2026年1月完成予定。
| 賃料・費用 |
17万8,000円
(+管理費等 なし)
坪単価:約1.1万円/坪
敷16万1,819円礼17万8,000円(1ヶ月)仲17万8,000円
|
|---|---|
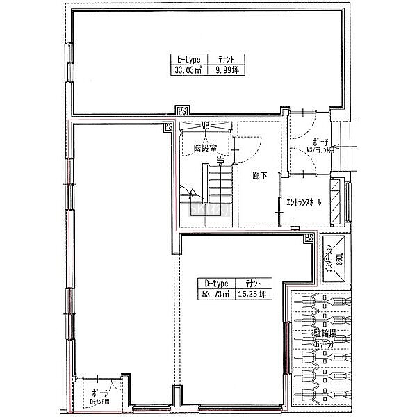
| 専有面積 | 53.73m² (16.25坪) |
| 住所 | 北海道札幌市白石区南郷通16丁目北10-21 |
| 交通 | 南郷18丁目駅(徒歩7分)|南郷13丁目駅(徒歩10分)道順を見る |
| 階/階建 | 路面 / 4階建 |
| 築年月 | 建築中(2026年1月完成予定) |
| 駐車場 |
なし
|
【WEB面談可】
空室確認、見学、詳細を知りたい方はこちら!
お電話の際は「連合隊の物件」とお伝えください。
情報掲載期限:あと23日(更新日 2025/12/17)
- 物件写真・概要
- 周辺地図
-
【WEB面談可】
空室確認、見学、詳細を知りたい方はこちら!おすすめポイント
- 路面店
- 商店街に面す
- 幹線道路沿い
- デザイナーズ
- エアコン付
- 24時間セキュリティー
- 出店するなら…この業種がおすすめ!
- 飲食全般(重飲食含む)

- 喫茶・カフェ(軽飲食)

- バー・クラブ・スナック

- 小売・物販

- 美容・健康・介護

- 医療

- 教育・スクール

- 事務所

- アミューズメント

交通色がついているアイコンをクリックすると、本物件までの道順を見ることができます。
物件概要
所在階/建物の階建 1階(1階路面テナント) / 地上4階建 主要採光面 構造 鉄筋コンクリート(RC)造 間取り 契約期間 2年間 権利金 住宅保険 1万7,000円(2年間) 出店推奨業種 美容・健康・介護、教育・スクール、事務所 出店不可業種 その他費用 毎月の費用 - 緊急サポート費:550円
引渡し 相談(2026年2月) 管理人 取引態様 仲介 物件No TF09241 設備・特徴 - 商店街に面す
- 幹線道路沿い
- デザイナーズ
- ガス暖房
- エアコン付
- 24時間セキュリティー
- 路面店
- 前面ガラス張り
備考 デザイナーズ物件 駅近テナント 1階路面店 前面ガラス張り ワンフロア物件 商店街に面す 物販 事務所 理美容 エステ スクール クリニック その他 飲食店 札幌市内すべてのテナントをご紹介致します! ☆賃料等の諸条件ご相談くださいませ。 主な周辺施設色がついているアイコンをクリックすると、本物件までの道順を見ることができます。
-
※連合隊は物件情報の精度向上に努めています:「物件情報に誤りがある」「成約済みである」などお気付きの点がございましたらこちらよりご連絡ください。
写真枚数:30枚
【すべてはお客様の事業成功のために】
皆様、感謝してます!! テナントに関することならなんでもお気軽にご相談くださいませ。😊今日も皆様の笑顔のためにがんばります!😊