ワンフラット円山【一棟貸し】
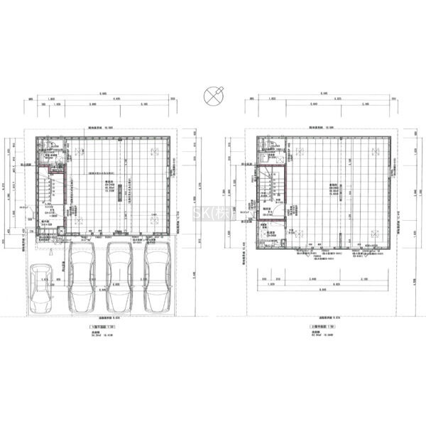
ここに注目!北円山の閑静なエリアに佇む【一棟貸し】のデザイナーズ物件をご紹介します。 約42坪の広々とした空間は、1F:約12坪、2F:約15坪、3F:約15坪とフロアごとに使い分けが可能。店舗やオフィス、スクールなど、御社の事業プランに合わせて多様なレイアウトが実現できます。 敷地内には嬉しい駐車場3~4台分を確保。来客用や従業員用としても活用できます。 周辺には病院が徒歩2分、コンビニや飲食店も近く、ビジネス拠点としての利便性も兼ね備えています。 月々の管理費は0円。初期費用や賃料など、諸条件のご相談も承ります。照明器具も備え付けのため、すぐにでも新しい事業をスタートできる環境です。 この機会に、理想のビジネス空間を実現しませんか?詳細はお気軽にお問い合わせください。札幌市内のテナント物件も幅広くご紹介しております。
| 賃料・費用 |
45万円
(+管理費等 なし)
坪単価:約1.0万円/坪
敷122万7,273円礼45万円(1ヶ月)仲45万円
|
|---|---|
| 専有面積 | 141.86m² (42.91坪) |
| 住所 | 北海道札幌市中央区北七条西27丁目3-17 |
| 交通 | |
| 階/階建 | |
| 築年月 | |
| 駐車場 |
あり
|
【WEB面談可】
空室確認、見学、詳細を知りたい方はこちら!
お電話の際は「連合隊の物件」とお伝えください。
情報掲載期限:あと26日(更新日 2025/12/11)
- 物件写真・概要
- 周辺地図
-
【WEB面談可】
空室確認、見学、詳細を知りたい方はこちら!おすすめポイント
- 即入居可
- 駐車場あり
- デザイナーズ
物件概要
所在階/建物の階建 一棟貸し 主要採光面 構造 間取り 契約期間 権利金 住宅保険 出店推奨業種 出店不可業種 引渡し 即時 管理人 取引態様 仲介 物件No 設備・特徴 - デザイナーズ
- 照明器具付
備考 デザイナーズ物件 大型物件 ワンフロア物件 札幌市内すべてのテナントをご紹介致します! ☆賃料等の諸条件ご相談くださいませ。 他にも非公開物件を多数ご用意しております! 主な周辺施設色がついているアイコンをクリックすると、本物件までの道順を見ることができます。
-
※連合隊は物件情報の精度向上に努めています:「物件情報に誤りがある」「成約済みである」などお気付きの点がございましたらこちらよりご連絡ください。
写真枚数:6枚
【すべてはお客様の事業成功のために】
皆様、感謝してます!! テナントに関することならなんでもお気軽にご相談くださいませ。😊今日も皆様の笑顔のためにがんばります!😊