店舗・事務所(区分)|テナント
F-works南郷
| 賃料・費用 |
17万8,000円
(+管理費等 なし)
坪単価:約1.1万円/坪
敷16万1,819円礼17万8,000円(1ヶ月)仲17万8,000円
|
|---|---|
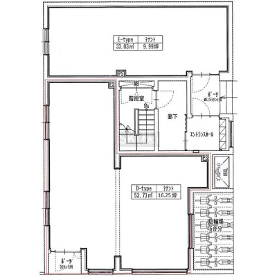
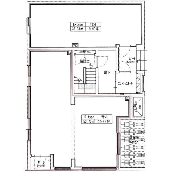
| 専有面積 | 53.73m² (16.25坪) |
| 住所 | 北海道札幌市白石区南郷通16丁目北10-21地図 |
| 交通 | 南郷18丁目駅(徒歩7分)|南郷13丁目駅(徒歩10分)|南郷7丁目駅(徒歩22分)道順を見る |
| 階/階建 | 路面 / 4階建 |
| 築年月 | 建築中(2026年2月完成予定) |
| 駐車場 |
なし
|
【WEB面談可】
空室確認、見学、詳細を知りたい方はこちら!
お電話の際は「連合隊の物件」とお伝えください。
011-616-5010
情報掲載期限:あと3日(更新日 2025/11/25)
- 物件写真・概要
- 周辺地図
-
【WEB面談可】
空室確認、見学、詳細を知りたい方はこちら!おすすめポイント
- 路面店
- スケルトン
- デザイナーズ
交通色がついているアイコンをクリックすると、本物件までの道順を見ることができます。
物件概要
所在階/建物の階建 1階 / 地上4階建 主要採光面 構造 鉄筋コンクリート(RC)造 間取り 契約期間 2年間 権利金 住宅保険 出店推奨業種 出店不可業種 引渡し 2026年2月初旬 管理人 取引態様 仲介 物件No 635675 設備・特徴 - デザイナーズ
- スケルトン
- 路面店
備考 デザイナーズ物件 1階路面店 オフィス 事務所 サービス系店舗 理美容 福祉系 クリニック その他 札幌市内すべてのテナントをご紹介致します! ☆賃料等の諸条件ご相談くださいませ。 非公開物件も多数ご紹介いたします!! 主な周辺施設色がついているアイコンをクリックすると、本物件までの道順を見ることができます。
-
※連合隊は物件情報の精度向上に努めています:「物件情報に誤りがある」「成約済みである」などお気付きの点がございましたらこちらよりご連絡ください。
写真枚数:4枚
【すべてはお客様の事業成功のために】
皆様、感謝してます!! テナントに関することならなんでもお気軽にご相談くださいませ。😊今日も皆様の笑顔のためにがんばります!😊