KKS東札幌
ここに注目!地下鉄白石駅徒歩2分の好立地テナントでございます。ご内覧も可能ですので、どうぞお気軽にお申し付けください! ※ネット非公開物件やレア物件も多数取り扱っております。まずはお問合せくださいませ!
| 賃料・費用 |
101万6,070円
(+管理費等 なし)
坪単価:約1.1万円/坪
敷554万2,200円仲101万6,070円
|
|---|---|
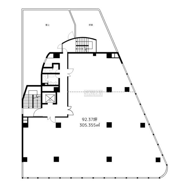
| 専有面積 | 305.36m² (92.37坪) |
| 住所 | 北海道札幌市白石区東札幌三条5丁目3-24 |
| 交通 | |
| 階/階建 | 2階 / 8階建(地下1階) |
| 築年月 | 築40年(1985年9月) |
| 駐車場 |
あり (2万2,000円/台)
|
【WEB面談可】
空室確認、見学、詳細を知りたい方はこちら!
お電話の際は「連合隊の物件」とお伝えください。
情報掲載期限:あと26日(更新日 2025/12/11)
- 物件写真・概要
- 周辺地図
-
【WEB面談可】
空室確認、見学、詳細を知りたい方はこちら!おすすめポイント
- 即入居可
- 駐車場あり
物件概要
所在階/建物の階建 2階 / 地上8階 地下1階建 主要採光面 構造 鉄骨鉄筋コンクリート(SRC)造 間取り 契約期間 権利金 住宅保険 出店推奨業種 出店不可業種 引渡し 即時 管理人 取引態様 仲介 物件No 607243 設備・特徴 備考 デザイナーズ物件 大型物件 ワンフロア物件 前面ガラス張り 札幌市内すべてのテナントをご紹介致します! ☆賃料等の諸条件ご相談くださいませ。 他にも非公開物件を多数ご用意しております! 主な周辺施設色がついているアイコンをクリックすると、本物件までの道順を見ることができます。
-
※連合隊は物件情報の精度向上に努めています:「物件情報に誤りがある」「成約済みである」などお気付きの点がございましたらこちらよりご連絡ください。
写真枚数:13枚
【すべてはお客様の事業成功のために】
皆様、感謝してます!! テナントに関することならなんでもお気軽にご相談くださいませ。😊今日も皆様の笑顔のためにがんばります!😊