倉庫・工場|テナント
植苗倉庫北海道苫小牧市植苗169-5
| 賃料・費用 |
216万5,775円
(+管理費等 -円)
坪単価:約2,750円/坪
仲216万5,775円
|
|---|---|
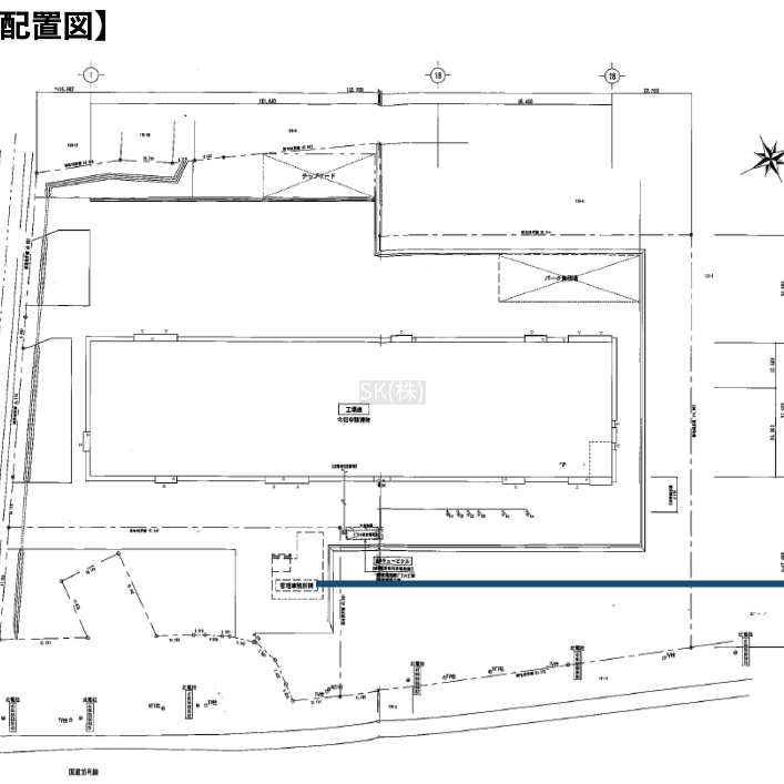
| 専有面積 | 2604m² (787.71坪) |
| 住所 | 北海道苫小牧市植苗169-5 |
| 交通 | |
| 階/階建 | 1階 |
| 築年月 | 築17年(2008年11月) |
| 駐車場 |
【WEB面談可】
空室確認、見学、詳細を知りたい方はこちら!
お電話の際は「連合隊の物件」とお伝えください。
011-616-5010
情報掲載期限:あと29日(更新日 2025/12/26)
- 物件写真・概要
- 周辺地図
-
【WEB面談可】
空室確認、見学、詳細を知りたい方はこちら!おすすめポイント
- 即入居可
物件概要
所在階/建物の階建 1階(A区画+B区画) 主要採光面 構造 間取り 契約期間 権利金 住宅保険 出店推奨業種 出店不可業種 用途地域 - 準工業地域
引渡し 即時 管理人 取引態様 仲介 物件No 607047 設備・特徴 備考 おすすめ業種: 事務所 工場 他にも非公開物件を多数ご用意しております! 主な周辺施設色がついているアイコンをクリックすると、本物件までの道順を見ることができます。
-
※連合隊は物件情報の精度向上に努めています:「物件情報に誤りがある」「成約済みである」などお気付きの点がございましたらこちらよりご連絡ください。
写真枚数:22枚
【すべてはお客様の事業成功のために】
皆様、感謝してます!! テナントに関することならなんでもお気軽にご相談くださいませ。😊今日も皆様の笑顔のためにがんばります!😊