ノルテ5・6ビル
ここに注目!【札幌駅まで徒歩4分】ご通勤にも便利な立地にございます。2025年10月から賃借可能となります。 ※非公開テナントや空き予定物件ならSKにお任せくださいませ!
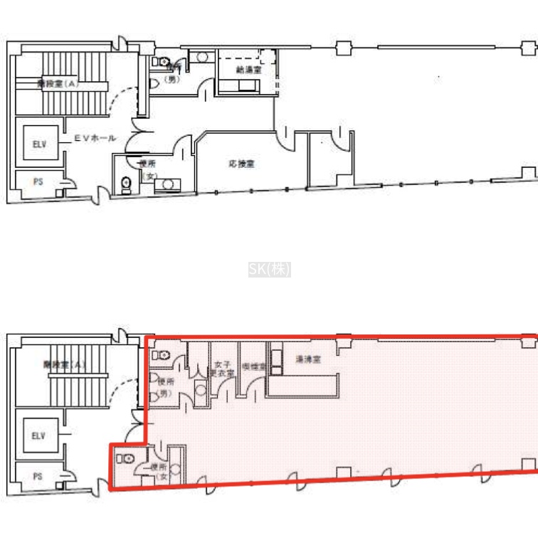
この物件は オフィス の居抜き物件です。
現状の設備が残されたまま取引されるため、初期費用を抑え速やかに事業を開始できるメリットがあります。
| 賃料・費用 |
114万4,000円
(+管理費等 -円)
坪単価:約1.4万円/坪
敷312万円仲114万4,000円
|
|---|---|
| 専有面積 | 265.76m² (80.39坪) |
| 住所 | 北海道札幌市中央区北五条西6丁目1 |
| 交通 | 札幌駅(徒歩4分)道順を見る |
| 階/階建 | |
| 築年月 | |
| 駐車場 |
【WEB面談可】
空室確認、見学、詳細を知りたい方はこちら!
お電話の際は「連合隊の物件」とお伝えください。
情報掲載期限:あと23日(更新日 2025/12/10)
- 物件写真・概要
- 周辺地図
-
【WEB面談可】
空室確認、見学、詳細を知りたい方はこちら!おすすめポイント
- 駅徒歩5分以内
- 複数路線利用可
- 駅前立地
- 商店街に面す
- 幹線道路沿い
- デザイナーズ
- 男女別トイレ
- エアコン付
- 出店するなら…この業種がおすすめ!
- 飲食全般(重飲食含む)

- 喫茶・カフェ(軽飲食)

- バー・クラブ・スナック

- 小売・物販

- 美容・健康・介護

- 医療

- 教育・スクール

- 事務所

- アミューズメント

交通色がついているアイコンをクリックすると、本物件までの道順を見ることができます。
物件概要
所在階/建物の階建 主要採光面 構造 間取り 契約期間 権利金 住宅保険 出店推奨業種 事務所、その他 出店不可業種 居抜き情報 [オフィス] の居抜きその他費用 毎月の費用 - その他、固定費(エレベーター点検料など):3万2,010円
引渡し 相談 管理人 取引態様 仲介 物件No 603034 設備・特徴 - 複数路線利用可
- 駅前立地
- 商店街に面す
- 幹線道路沿い
- エレベーター
- デザイナーズ
- エアコン付
- 男女別トイレ
備考 デザイナーズ物件 駅近物件 大型物件 商店街に面す 札幌駅エリア おすすめ業種: 事務所 オフィス その他 ☆賃料等の諸条件ご相談くださいませ。 札幌市内すべてのテナントをご紹介致します! 他にも非公開物件を多数ご用意しております! 主な周辺施設色がついているアイコンをクリックすると、本物件までの道順を見ることができます。
-
※連合隊は物件情報の精度向上に努めています:「物件情報に誤りがある」「成約済みである」などお気付きの点がございましたらこちらよりご連絡ください。
写真枚数:20枚
【すべてはお客様の事業成功のために】
皆様、感謝してます!! テナントに関することならなんでもお気軽にご相談くださいませ。😊今日も皆様の笑顔のためにがんばります!😊