ここに注目!【大通エリア】新築未入居物件のご紹介です。地下鉄大通駅「1番出入り口」から徒歩4分の立地にございます。現在リーシングキャンペーンにつき賃料がお安くなっております。大通公園の季節の移ろいを感じながら快適にお仕事はいかがでしょうか。設備:調光機能付きLED照明、個別ヒートポンプ式冷暖房、エレベータ2基、OAフロア、24時間セキュリティ、喫煙室完備。ご内覧など、お気軽にお申し付けください。 ※オーナー様ご意向によりネット非掲載テナントも数多く取り扱っております。お気軽にお問い合わせくださいませ。
| 賃料・費用 |
251万5,392円
(+管理費等 -円)
坪単価:約2.0万円/坪
敷2,744万640円仲251万5,392円
|
|---|---|
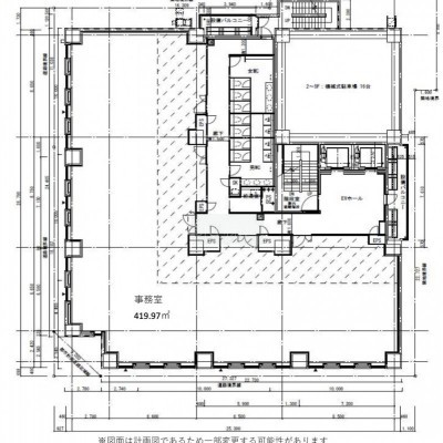
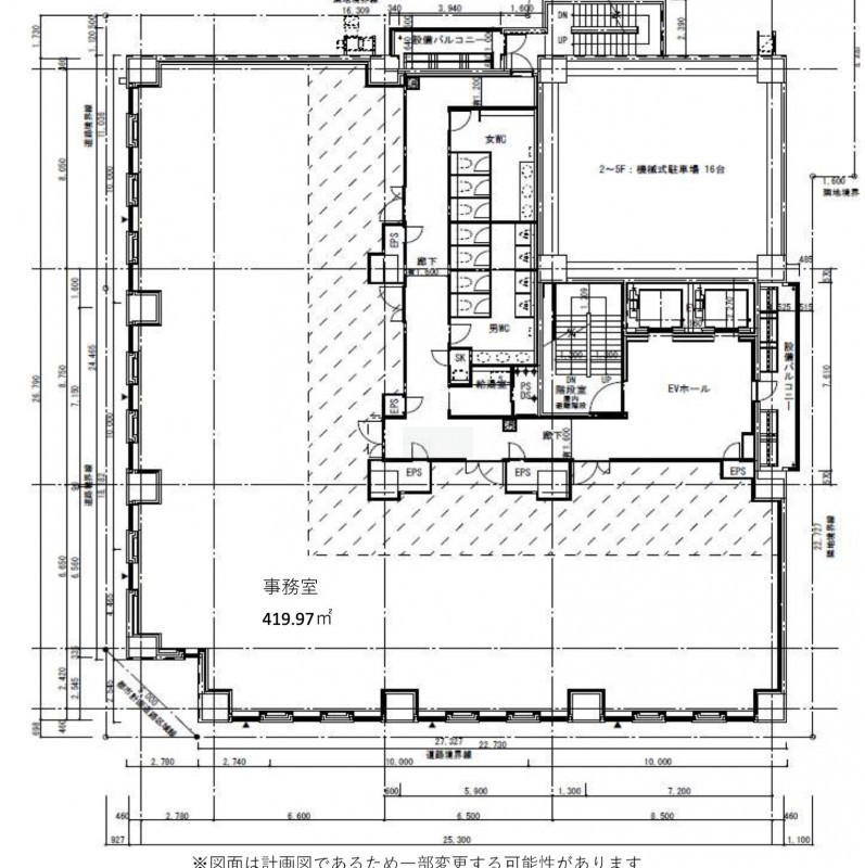
| 専有面積 | 419.97m² (127.04坪) |
| 住所 | 北海道札幌市中央区大通西六丁目10 |
| 交通 | 西4丁目駅(徒歩7分)|西11丁目駅(徒歩8分) |
| 階/階建 | 4階 / 9階建 |
| 築年月 | 築1年(2024年9月) |
| 駐車場 |
あり 駐車可能台数:16台
機械式16台(ハイルーフ10台、ミドルルール6台) |
【WEB面談可】
空室確認、見学、詳細を知りたい方はこちら!
お電話の際は「連合隊の物件」とお伝えください。
情報掲載期限:あと17日(更新日 2025/12/2)
- 物件写真・概要
- 周辺地図
-
【WEB面談可】
空室確認、見学、詳細を知りたい方はこちら!おすすめポイント
- 即入居可
- 複数路線利用可
- 駅前立地
- 駐車2台以上可
- デザイナーズ
- 光ファイバー
- OAフロア
- 24時間セキュリティー
交通色がついているアイコンをクリックすると、本物件までの道順を見ることができます。
物件概要
所在階/建物の階建 4階 / 地上9階建 主要採光面 構造 鉄筋コンクリート(RC)造 間取り 契約期間 2年間 権利金 住宅保険 引渡し 即時 管理人 取引態様 仲介 物件No 602253 設備・特徴 - 複数路線利用可
- 駅前立地
- 商店街に面す
- 幹線道路沿い
- エレベーター
- デザイナーズ
- 照明器具付
- OAフロア
- 個別空調
- 24時間セキュリティー
- ブロードバンド回線(光ファイバー等の高速インターネット)
- 24時間利用可
- 前面ガラス張り
備考 デザイナーズ物件 駅近物件 大型物件 ワンフロア物件 前面ガラス張り 商店街に面す 大通エリア おすすめ業種: オフィス 事務所 その他 ☆賃料等の諸条件ご相談くださいませ。 札幌市内すべてのテナントをご紹介致します! 他にも非公開物件を多数ご用意しております! 主な周辺施設色がついているアイコンをクリックすると、本物件までの道順を見ることができます。
-
※連合隊は物件情報の精度向上に努めています:「物件情報に誤りがある」「成約済みである」などお気付きの点がございましたらこちらよりご連絡ください。
写真枚数:8枚
【すべてはお客様の事業成功のために】
皆様、感謝してます!! テナントに関することならなんでもお気軽にご相談くださいませ。😊今日も皆様の笑顔のためにがんばります!😊