ここに注目!2026年2月竣工のオフィス区画で募集をしております。地下鉄南北線・東西線・東豊線「大通駅」から徒歩7分の立地にございます。新築ビルで快適にお仕事はいかがでしょうか。最小21坪〜最大203坪でのご契約も可能でございます。お問い合わせお待ちしております。 ※オーナー様ご意向によりネット非掲載テナントも数多く取り扱っております。お気軽にお問い合わせくださいませ。
この物件の契約期間は 5年間です。
定期借家物件は、賃貸借契約期間満了後、原則として契約の更新ができない物件です。再契約の可否については不動産会社にお問合せください。
| 賃料・費用 |
135万888円
(+管理費等 -円)
坪単価:約2.3万円/坪
敷1,228万800円仲135万888円
|
|---|---|
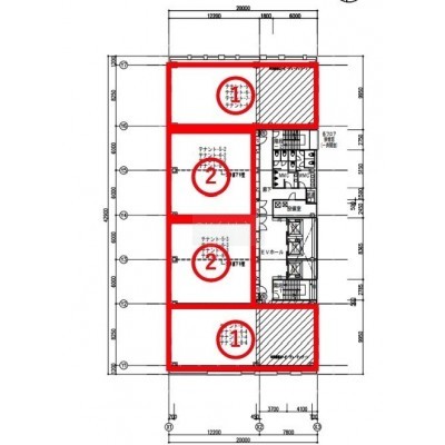
| 専有面積 | 193.33m² (58.48坪) |
| 住所 | 北海道札幌市中央区北一条西4丁目 |
| 交通 | 大通駅(徒歩7分) |
| 階/階建 | 8階 / 8階建(地下1階) |
| 築年月 | 建築中(2026年2月完成予定) |
| 駐車場 |
【WEB面談可】
空室確認、見学、詳細を知りたい方はこちら!
お電話の際は「連合隊の物件」とお伝えください。
情報掲載期限:あと22日(更新日 2025/12/21)
- 物件写真・概要
- 周辺地図
-
【WEB面談可】
空室確認、見学、詳細を知りたい方はこちら!おすすめポイント
- 複数路線利用可
- 駅前立地
- 商店街に面す
- 幹線道路沿い
- デザイナーズ
- 男女別トイレ
- エアコン付
- OAフロア
- 24時間セキュリティー
- 出店するなら…この業種がおすすめ!
- 飲食全般(重飲食含む)

- 喫茶・カフェ(軽飲食)

- バー・クラブ・スナック

- 小売・物販

- 美容・健康・介護

- 医療

- 教育・スクール

- 事務所

- アミューズメント

交通色がついているアイコンをクリックすると、本物件までの道順を見ることができます。
物件概要
所在階/建物の階建 8階 / 地上8階 地下1階建 主要採光面 構造 鉄骨造 間取り 契約期間 定期借家(5年間) 権利金 住宅保険 出店推奨業種 事務所 出店不可業種 引渡し 2026年2月下旬 管理人 取引態様 仲介 物件No 594829 設備・特徴 - 複数路線利用可
- 駅前立地
- 商店街に面す
- 幹線道路沿い
- エレベーター
- デザイナーズ
- OAフロア
- エアコン付
- 24時間セキュリティー
- 男女別トイレ
備考 デザイナーズ物件 駅近物件 大型物件 ワンフロア物件 前面ガラス張り 大通エリア おすすめ業種: オフィス 事務所 その他 ☆賃料等の諸条件ご相談くださいませ。 札幌市内すべてのテナントをご紹介致します! 他にも非公開物件を多数ご用意しております! 主な周辺施設色がついているアイコンをクリックすると、本物件までの道順を見ることができます。
-
※連合隊は物件情報の精度向上に努めています:「物件情報に誤りがある」「成約済みである」などお気付きの点がございましたらこちらよりご連絡ください。
写真枚数:2枚
【すべてはお客様の事業成功のために】
皆様、感謝してます!! テナントに関することならなんでもお気軽にご相談くださいませ。😊今日も皆様の笑顔のためにがんばります!😊