札幌エスワンビル
ここに注目!エスワンビルは大通エリアに位置する全面ガラス張りの特徴を持つビルでございます。中心部に位置するため市電や地下鉄の駅から徒歩圏内にあり、交通アクセスも良好です。同ビルにはフィットネスジムやサロン、ショップなどがご入居しております。ビルにはオートロックやセキュリティーカメラが設置されているため、安心してビル内を利用できます。また、ビル内にはオフィススペースがあり、ビジネス利用に適した環境が整っています。また、周辺には金融機関や企業が多く、ビジネスマンにとっても利便性が高い場所に位置しています。 ※ネット非公開物件も多数取り扱っております。まずはお問合せくださいませ!
| 賃料・費用 |
117万1,005円
(+管理費等 23万4,201円)
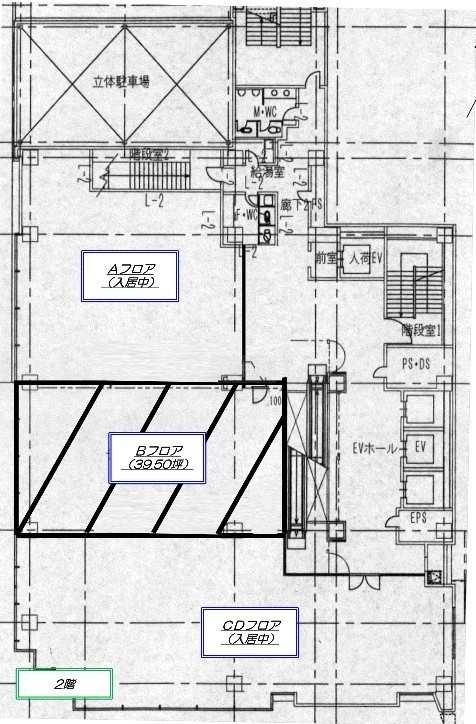
坪単価:約1.7万円/坪
敷1,277万4,600円仲140万5,206円
|
|---|---|
| 専有面積 | 234.62m² (70.97坪) |
| 住所 | 北海道札幌市中央区南一条西四丁目20−5 |
| 交通 | 西8丁目駅(徒歩5分)|西11丁目駅(徒歩3分)|中央区役所前駅(徒歩1分)道順を見る |
| 階/階建 | 7階 / 9階建(地下2階) |
| 築年月 | 築27年(1998年10月) |
| 駐車場 |
あり (4万円/台)
|
【WEB面談可】
空室確認、見学、詳細を知りたい方はこちら!
お電話の際は「連合隊の物件」とお伝えください。
情報掲載期限:あと10日(更新日 2025/11/25)
- 物件写真・概要
- 周辺地図
-
【WEB面談可】
空室確認、見学、詳細を知りたい方はこちら!おすすめポイント
- 即入居可
- 駅徒歩1分以内
- 複数路線利用可
- 駅前立地
- 商店街に面す
- 幹線道路沿い
- 駐車場あり
- デザイナーズ
交通色がついているアイコンをクリックすると、本物件までの道順を見ることができます。
物件概要
所在階/建物の階建 7階 / 地上9階 地下2階建 主要採光面 構造 鉄骨鉄筋コンクリート(SRC)造 間取り 契約期間 権利金 住宅保険 出店推奨業種 出店不可業種 引渡し 即時 管理人 取引態様 仲介 物件No Y4051112 設備・特徴 - 複数路線利用可
- 駅前立地
- 商店街に面す
- 幹線道路沿い
- エレベーター
- デザイナーズ
備考 デザイナーズ物件 駅近物件 ガラス張り 大通エリア 狸小路エリア *賃料等課税対象となる金額には別途消費税が加算されます。 ☆賃料等の諸条件ご相談くださいませ。 札幌市内すべてのテナントをご紹介致します! 他にも非公開物件を多数ご用意しております! 主な周辺施設色がついているアイコンをクリックすると、本物件までの道順を見ることができます。
-
※連合隊は物件情報の精度向上に努めています:「物件情報に誤りがある」「成約済みである」などお気付きの点がございましたらこちらよりご連絡ください。
写真枚数:4枚
【すべてはお客様の事業成功のために】
皆様、感謝してます!! テナントに関することならなんでもお気軽にご相談くださいませ。😊今日も皆様の笑顔のためにがんばります!😊