JAZZG BASE
ここに注目!新しいビジネスのスタートにぴったりの「JAZZG BASE」☆ 2026年3月末竣工予定で現在建築中の新築メディカルビルです☆ 医療機関様はもちろん、福祉関連事業や事務所としてもご利用いただける、幅広い可能性を秘めた物件です! 広々とした135.95㎡の空間は、スケルトン仕様のため、お客様のこだわりを詰め込んだ理想のレイアウトを自由に実現できます☆ エレベーター完備で、4階の南西向きのお部屋は快適な環境を提供します☆ 幹線道路沿いの視認性の良い立地で、周辺には郵便局やコンビニがあり、日々の業務をスムーズにサポート☆ 駐車場も1台11,000円でご利用いただけ、お車でのアクセスも安心です。 定期借家契約ですが、期間延長や再契約も柔軟にご相談いただけますので、長期的な事業計画も立てやすいのが嬉しいポイント。 ぜひお気軽にお問い合わせください!
この物件の契約期間は 10年間です。
定期借家物件は、賃貸借契約期間満了後、原則として契約の更新ができない物件です。再契約の可否については不動産会社にお問合せください。
| 賃料・費用 |
44万円
(+管理費等 6万6,000円)
坪単価:約1.1万円/坪
敷120万円礼なし仲44万円
|
|---|---|
| 専有面積 | 132.24m² (40坪) |
| 住所 | 北海道札幌市白石区栄通4丁目2-11 |
| 交通 | 南郷7丁目駅(徒歩12分)|白石駅(徒歩13分)道順を見る |
| 階/階建 | 4階 / 5階建 |
| 築年月 | 建築中(2026年3月完成予定) |
| 駐車場 |
あり (1万1,000円/台) 駐車可能台数:1台
敷地内6台分あり(2台目以降は空き状況により相談可) |
【WEB面談可】
空室確認、見学、詳細を知りたい方はこちら!
お電話の際は「連合隊の物件」とお伝えください。
情報掲載期限:あと21日(更新日 2026/2/12)
- 物件写真・概要
- 周辺地図
-
【WEB面談可】
空室確認、見学、詳細を知りたい方はこちら!おすすめポイント
- 幹線道路沿い
- 駐車場あり
- スケルトン
- 出店するなら…この業種がおすすめ!
- 飲食全般(重飲食含む)

- 喫茶・カフェ(軽飲食)

- バー・クラブ・スナック

- 小売・物販

- 美容・健康・介護

- 医療

- 教育・スクール

- 事務所

- アミューズメント

※出店不可の業種:重飲食(軽飲食は相談可)、アミューズメント、水商売
交通色がついているアイコンをクリックすると、本物件までの道順を見ることができます。
物件概要
所在階/建物の階建 4階(401) / 地上5階建 主要採光面 南西 構造 鉄筋コンクリート(RC)造 間取り 契約期間 定期借家(10年間) 更新料/更新手数料 なし 権利金 住宅保険 お問合せください 出店推奨業種 美容・健康・介護、医療、事務所 出店不可業種 重飲食(軽飲食は相談可)、アミューズメント、水商売 接道状況 角地 用途地域 - 準住居地域
その他費用 その他 - 保証会社 初回保証料:52万8,000円
引渡し 2026年4月初旬(※2026年3月末竣工予定) 管理人 無 取引態様 仲介 物件No 設備・特徴 - 幹線道路沿い
- エレベーター
- スケルトン
備考 新築メディカルビル☆ 医療限定ではなく、福祉関連や事務所等のご利用も相談可能です。 定期借家10年ですが、定期借家期間は伸ばすことも可能かつ、再契約も可能です。 ※管理費は金額変更の可能性があります 主な周辺施設色がついているアイコンをクリックすると、本物件までの道順を見ることができます。
-
※連合隊は物件情報の精度向上に努めています:「物件情報に誤りがある」「成約済みである」などお気付きの点がございましたらこちらよりご連絡ください。
写真枚数:4枚
完成予想パース
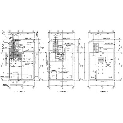
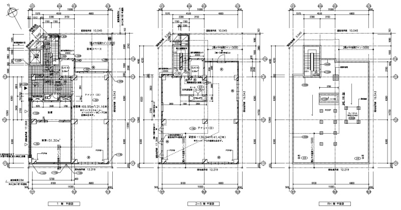
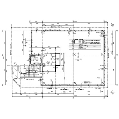
各階平面図
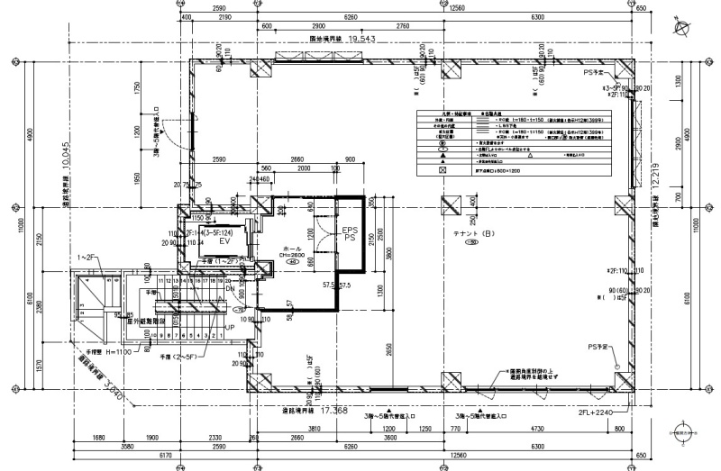
平面図
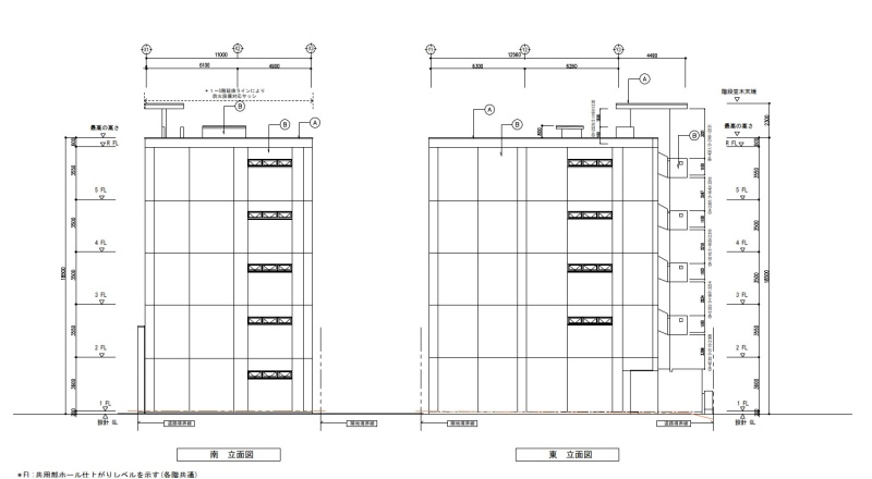
立面図
ご期待以上のご提案を。札幌市内・近郊ご対応致します 売買・賃貸仲介、不動産管理などご相談ください!
入居前の丁寧な対応はもちろん、入居後のトラブルにも徹底的に対応しております!お客様の数年後の未来まで一緒に考えてご提案、オンライン接客にも積極的に取り組んでいます。英語対応も複数のスタッフが可能です。