事務所(区分)|テナント
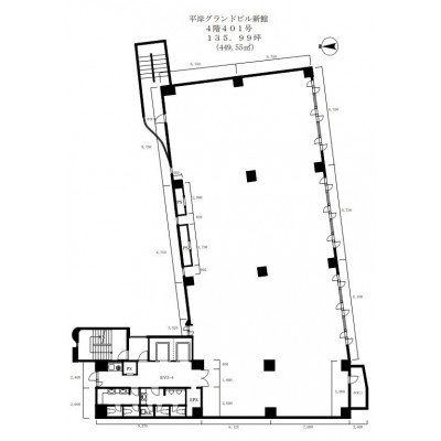
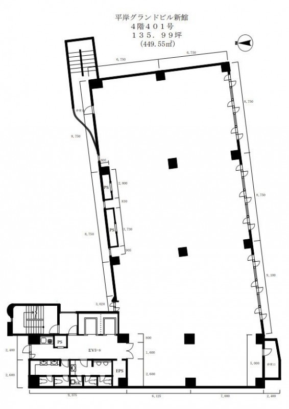
平岸グランドビル新館
| 賃料・費用 |
101万9,900円
(+管理費等 20万4,000円)
坪単価:約7,501円/坪
敷611万9,400円(6ヶ月)礼なし仲なし
|
|---|---|
| 専有面積 | 449.55m² (135.98坪) |
| 住所 | 北海道札幌市豊平区平岸三条5丁目4-22 |
| 交通 | 平岸駅(徒歩5分) |
| 階/階建 | 4階 / 9階建 |
| 築年月 | 築31年(1994年1月) |
| 駐車場 |
【WEB面談可】
空室確認、見学、詳細を知りたい方はこちら!
お電話の際は「連合隊の物件」とお伝えください。
011-596-0710
情報掲載期限:あと29日(更新日 2025/12/14)
- 物件写真・概要
- 周辺地図
-
【WEB面談可】
空室確認、見学、詳細を知りたい方はこちら!おすすめポイント
- 駅徒歩5分以内
交通色がついているアイコンをクリックすると、本物件までの道順を見ることができます。
物件概要
所在階/建物の階建 4階(401) / 地上9階建 主要採光面 構造 鉄骨鉄筋コンクリート(SRC)造 間取り 契約期間 2年間 権利金 住宅保険 引渡し 相談 管理人 取引態様 仲介 物件No 設備・特徴 備考 事務所 -
※連合隊は物件情報の精度向上に努めています:「物件情報に誤りがある」「成約済みである」などお気付きの点がございましたらこちらよりご連絡ください。
写真枚数:2枚
さっぽろ賃貸ショップは札幌市の賃貸物件が仲介手数料無料!(一部例外有)初期費用の最安値を目指します!
当店は【仲介手数料無料】です!(一部例外有)当社HPの「初回費用無料査定サービス」利用で成約の場合【10000円キャッシュバック!】※初回問合せ・ご来店時の利用申告が条件|初期費用のクレジット決済・PayPay対応!