第21松井ビル【1階:路面店】
ここに注目!🍎🍏JR白石駅エリア🍎🍏1階:路面店に空き予定(10月末日退去予定)が出ました😊駐車場あり(台数は要確認となります)
テナント専門【一棟貸し・路面店をお探しの方は、こちらをクリック!!】
| 賃料・費用 |
127万4,039円
(+管理費等 -円)
坪単価:約4,015円/坪
敷463万2,872円仲127万4,039円
|
|---|---|
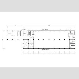
| 専有面積 | 1049m² (317.32坪) |
| 住所 | 北海道札幌市白石区平和通2丁目北9-3 |
| 交通 | 白石駅(徒歩4分)|白石駅(徒歩22分)道順を見る |
| 階/階建 | 路面 / 5階建(地下1階) |
| 築年月 | 築46年(1979年10月) |
| 駐車場 |
あり
台数要確認 |
【WEB面談可】
空室確認、見学、詳細を知りたい方はこちら!
お電話の際は「連合隊の物件」とお伝えください。
情報掲載期限:あと25日(更新日 2026/1/30)
- 物件写真・概要
- 周辺地図
-
【WEB面談可】
空室確認、見学、詳細を知りたい方はこちら!おすすめポイント
- 路面店
- 駅徒歩5分以内
- 複数路線利用可
- 駅前立地
- 商店街に面す
- 幹線道路沿い
- 駐車場あり
- 出店するなら…この業種がおすすめ!
- 飲食全般(重飲食含む)

- 喫茶・カフェ(軽飲食)

- バー・クラブ・スナック

- 小売・物販

- 美容・健康・介護

- 医療

- 教育・スクール

- 事務所

- アミューズメント

交通色がついているアイコンをクリックすると、本物件までの道順を見ることができます。
物件概要
所在階/建物の階建 1階 / 地上5階 地下1階建 主要採光面 南東 構造 鉄筋コンクリート(RC)造 間取り 契約期間 3年間 権利金 住宅保険 出店推奨業種 小売・物販、美容・健康・介護、事務所 出店不可業種 接道状況 角地 用途地域 - 近隣商業地域
- 第1種住居地域
その他費用 毎月の費用 - 24時間管理費:1,100円
一時金 - 保証委託料:127万5,139円
引渡し 相談(10月末日退去予定) 管理人 無 取引態様 仲介 物件No 設備・特徴 - 複数路線利用可
- 駅前立地
- 商店街に面す
- 幹線道路沿い
- 給排水設備
- 路面店
- 前面ガラス張り
備考 ・保証会社の利用が必須となります。 主な周辺施設色がついているアイコンをクリックすると、本物件までの道順を見ることができます。
-

この物件の担当者 宮本健太郎(ミヤモト ケンタロウ)
不動産業界歴20年以上!会社員8年➡個人事業7期➡法人設立7期目に入りました。よろしくお願いいたします。
※連合隊は物件情報の精度向上に努めています:「物件情報に誤りがある」「成約済みである」などお気付きの点がございましたらこちらよりご連絡ください。
写真枚数:10枚
札幌テナント仲介専門の不動産会社です。
札幌市内で店舗・オフィス(事務所)・倉庫物件をお探しの際には、ぜひ弊社にもお声がけください。豊富な知識を持ったスタッフが、数ある不動産情報からあなたにピッタリの物件をお探し致します。