【新築】アルファスクエア南5条東【1階:路面店】
ここに注目!【新築】🍎🍏豊水すすきのエリア🍎🍏1階:路面店の募集を開始しました😊2026年2月下旬完成予定!ハイグレードマンションの1階テナントです😊引渡し状態はスケルトン(床:コンクリート、壁:ボード、天井:ボード)となります。天井高2,700mm!地下鉄:豊水すすきの駅から徒歩5分!バスセンター前駅・大通駅・すすきの駅からも徒歩圏となっております。
テナント専門【一棟貸し・路面店をお探しの方は、こちらをクリック!!】
| 賃料・費用 |
35万8,600円
(+管理費等 -円)
坪単価:約1.6万円/坪
敷195万6,000円仲35万8,600円
|
|---|---|
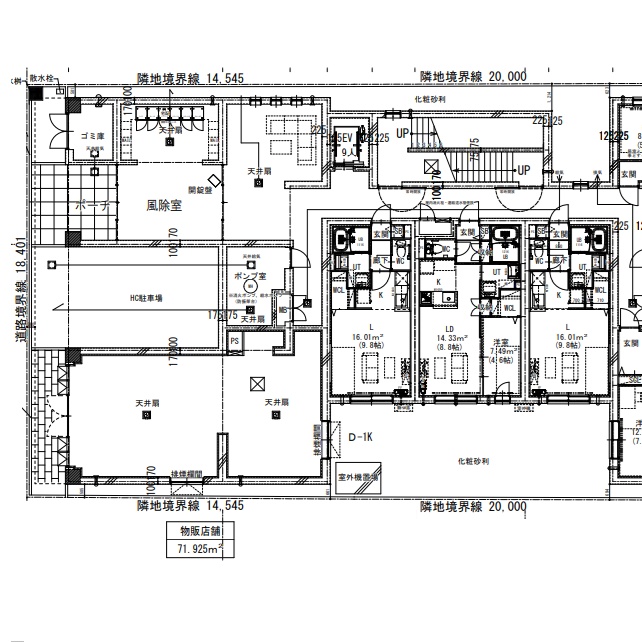
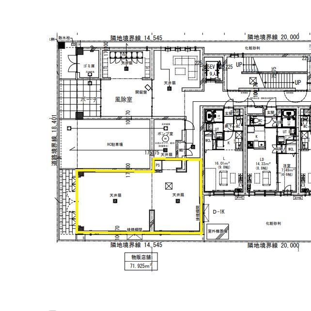
| 専有面積 | 71.92m² (21.75坪) |
| 住所 | 北海道札幌市中央区南五条東2丁目16-4 |
| 交通 | 豊水すすきの駅(徒歩5分)|すすきの駅(徒歩8分)|バスセンター前駅(徒歩9分)|大通駅(徒歩12分)道順を見る |
| 階/階建 | 路面 / 8階建 |
| 築年月 | 建築中(2026年2月完成予定) |
| 駐車場 |
あり (2万7,500円/台) 駐車可能台数:1台
|
【WEB面談可】
空室確認、見学、詳細を知りたい方はこちら!
お電話の際は「連合隊の物件」とお伝えください。
新着 情報掲載期限:あと29日(更新日 2025/12/19)
- 物件写真・概要
- 周辺地図
-
【WEB面談可】
空室確認、見学、詳細を知りたい方はこちら!おすすめポイント
- 路面店
- 駅徒歩5分以内
- 複数路線利用可
- 駅前立地
- 商店街に面す
- 幹線道路沿い
- 駐車場あり
- スケルトン
- デザイナーズ
- 出店するなら…この業種がおすすめ!
- 飲食全般(重飲食含む)

- 喫茶・カフェ(軽飲食)

- バー・クラブ・スナック

- 小売・物販

- 美容・健康・介護

- 医療

- 教育・スクール

- 事務所

- アミューズメント

交通色がついているアイコンをクリックすると、本物件までの道順を見ることができます。
- 豊水すすきの駅札幌市営地下鉄東豊線徒歩5分(約397m)
- すすきの駅札幌市営地下鉄南北線、札幌市電山鼻線徒歩8分(約633m)
- バスセンター前駅札幌市営地下鉄東西線徒歩9分(約693m)
- 大通駅札幌市営地下鉄南北線、札幌市営地下鉄東豊線、札幌市営地下鉄東西線徒歩12分(約930m)
物件概要
所在階/建物の階建 1階 / 地上8階建 主要採光面 西 構造 鉄筋コンクリート(RC)造 間取り 契約期間 権利金 住宅保険 出店推奨業種 小売・物販、美容・健康・介護、医療 出店不可業種 接道状況 一方 用途地域 - 商業地域
その他費用 一時金 - 保証委託料:35万8,600円
引渡し 相談(2026年2月下旬完成予定) 管理人 無 取引態様 仲介 物件No 設備・特徴 - 複数路線利用可
- 駅前立地
- 商店街に面す
- 幹線道路沿い
- エレベーター
- デザイナーズ
- 給排水設備
- 前面ガラス張り
- 路面店
- スケルトン
備考 保証会社の利用(初回保証料・更新保証料あり)が必須となります。 主な周辺施設色がついているアイコンをクリックすると、本物件までの道順を見ることができます。
-

この物件の担当者 宮本健太郎(ミヤモト ケンタロウ)
不動産業界歴20年以上!会社員8年➡個人事業7期➡法人設立7期目に入りました。よろしくお願いいたします。
※連合隊は物件情報の精度向上に努めています:「物件情報に誤りがある」「成約済みである」などお気付きの点がございましたらこちらよりご連絡ください。
写真枚数:11枚
札幌テナント仲介専門の不動産会社です。
札幌市内で店舗・オフィス(事務所)・倉庫物件をお探しの際には、ぜひ弊社にもお声がけください。豊富な知識を持ったスタッフが、数ある不動産情報からあなたにピッタリの物件をお探し致します。