カワムラビル【マンションタイプ:ワンフロア】
ここに注目!🍎🍏円山エリア🍎🍏【ワンフロア】住居タイプ:オフィス利用可能!!エレベーターあり😊ルーフバルコニー(8坪程度)あり😊地下鉄:円山公園駅から徒歩5分!住居として使用する場合は別途、室内清掃料、水廻り消毒料、エアコン清掃料がかかります。
テナント専門【円山エリアで店舗・オフィス物件をお探しの方は、こちらをクリック!!】
| 賃料・費用 |
33万円
(+管理費等 2万2,000円)
坪単価:約1.2万円/坪
敷90万円仲33万円
|
|---|---|
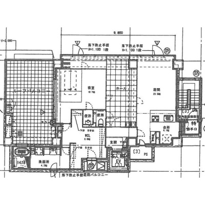
| 専有面積 | 88.39m² (26.73坪) |
| 住所 | 北海道札幌市中央区南二条西24丁目2-17 |
| 交通 | 円山公園駅(徒歩5分)道順を見る |
| 階/階建 | 3階 / 3階建 |
| 築年月 | 築7年(2018年10月) |
| 駐車場 |
【WEB面談可】
空室確認、見学、詳細を知りたい方はこちら!
お電話の際は「連合隊の物件」とお伝えください。
情報掲載期限:あと10日(更新日 2025/12/24)
- 物件写真・概要
- 周辺地図
-
【WEB面談可】
空室確認、見学、詳細を知りたい方はこちら!おすすめポイント
- 即入居可
- 駅徒歩5分以内
- 複数路線利用可
- 駅前立地
- 商店街に面す
- 幹線道路沿い
- デザイナーズ
- 男女別トイレ
- エアコン付
- 出店するなら…この業種がおすすめ!
- 飲食全般(重飲食含む)

- 喫茶・カフェ(軽飲食)

- バー・クラブ・スナック

- 小売・物販

- 美容・健康・介護

- 医療

- 教育・スクール

- 事務所

- アミューズメント

その他…住居
交通色がついているアイコンをクリックすると、本物件までの道順を見ることができます。
物件概要
所在階/建物の階建 3階(ワンフロア) / 地上3階建 主要採光面 西 構造 鉄筋コンクリート(RC)造 間取り バルコニー あり- ルーフバルコニー
契約期間 3年間 権利金 住宅保険 出店推奨業種 事務所、その他(住居) 出店不可業種 接道状況 角地 用途地域 - 準住居地域
その他費用 一時金 - 保証委託料:35万2,000円
引渡し 即時 管理人 無 取引態様 仲介 物件No 設備・特徴 - 複数路線利用可
- 駅前立地
- 商店街に面す
- 幹線道路沿い
- エレベーター
- デザイナーズ
- 照明器具付
- ガス設備
- 給排水設備
- エアコン付
- 個別空調
- 24時間利用可
- 男女別トイレ
備考 ・保証会社の利用(初回保証料・月額保証料あり)が必須となります。 ・住居として使用する場合は別途、室内清掃料、水廻り消毒料、エアコン清掃料がかかります。 主な周辺施設色がついているアイコンをクリックすると、本物件までの道順を見ることができます。
-

この物件の担当者 宮本健太郎(ミヤモト ケンタロウ)
不動産業界歴20年以上!会社員8年➡個人事業7期➡法人設立7期目に入りました。よろしくお願いいたします。
※連合隊は物件情報の精度向上に努めています:「物件情報に誤りがある」「成約済みである」などお気付きの点がございましたらこちらよりご連絡ください。
写真枚数:10枚
札幌テナント仲介専門の不動産会社です。
札幌市内で店舗・オフィス(事務所)・倉庫物件をお探しの際には、ぜひ弊社にもお声がけください。豊富な知識を持ったスタッフが、数ある不動産情報からあなたにピッタリの物件をお探し致します。