南22西11:A棟テナント【店舗可能】
ここに注目!【国道230号線沿い】🍎🍏山鼻エリア🍎🍏2階:店舗可能なテナントの募集を開始しました!エアコン2台あり😊トイレあり😊天井高2,700mm😊バルコニーあり😊来客用コインパーキング9台あり!!
テナント専門【中央区で店舗・オフィス物件をお探しの方は、こちらをクリック!!】
| 賃料・費用 |
19万8,000円
(+管理費等 3,300円)
坪単価:約9,452円/坪
敷59万4,000円(3ヶ月)仲19万8,000円
|
|---|---|
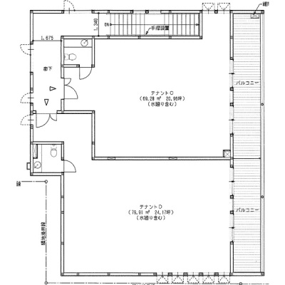
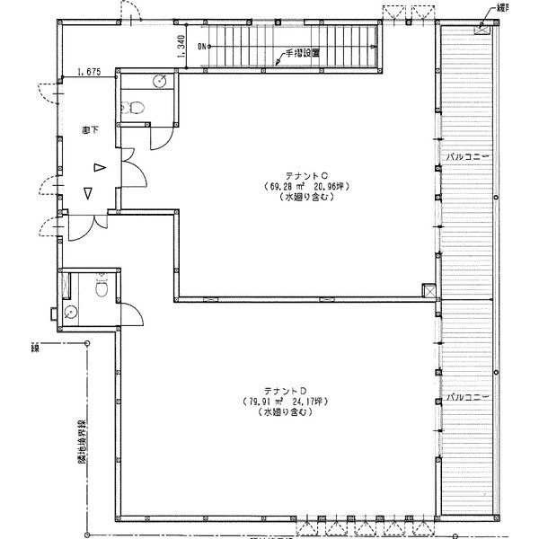
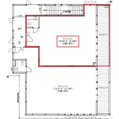
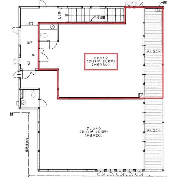
| 専有面積 | 69.28m² (20.95坪) |
| 住所 | 北海道札幌市中央区南二十二条西11丁目1-16 |
| 交通 | 幌平橋駅(徒歩25分)道順を見る |
| 階/階建 | 2階 / 2階建 |
| 築年月 | 築1年(2024年9月) |
| 駐車場 |
あり (1万3,200円/台) 駐車可能台数:2台
|
【WEB面談可】
空室確認、見学、詳細を知りたい方はこちら!
お電話の際は「連合隊の物件」とお伝えください。
情報掲載期限:あと27日(更新日 2025/12/31)
- 物件写真・概要
- 周辺地図
-
【WEB面談可】
空室確認、見学、詳細を知りたい方はこちら!おすすめポイント
- 即入居可
- 複数路線利用可
- 商店街に面す
- 幹線道路沿い
- 駐車2台以上可
- スケルトン
- デザイナーズ
- エアコン付
- 出店するなら…この業種がおすすめ!
- 飲食全般(重飲食含む)

- 喫茶・カフェ(軽飲食)

- バー・クラブ・スナック

- 小売・物販

- 美容・健康・介護

- 医療

- 教育・スクール

- 事務所

- アミューズメント

交通色がついているアイコンをクリックすると、本物件までの道順を見ることができます。
物件概要
所在階/建物の階建 2階(C) / 地上2階建 主要採光面 東 構造 木造 間取り 契約期間 3年間 権利金 住宅保険 出店推奨業種 美容・健康・介護、医療、教育・スクール 出店不可業種 接道状況 一方 用途地域 - 近隣商業地域
その他費用 毎月の費用 - 看板掲出料:4,400円
- RH負担金(12~3月):4,400円
一時金 - 保証委託料:23万6,500円
引渡し 即時 管理人 無 取引態様 仲介 物件No 設備・特徴 - 複数路線利用可
- 商店街に面す
- 幹線道路沿い
- デザイナーズ
- 給排水設備
- ガス設備
- エアコン付
- 24時間利用可
- スケルトン
- 前面ガラス張り
備考 保証会社の利用が必須となります。【敷地内来客用コインパーキングは、60分サービス券の有料販売あります】 主な周辺施設色がついているアイコンをクリックすると、本物件までの道順を見ることができます。
-

この物件の担当者 宮本健太郎(ミヤモト ケンタロウ)
不動産業界歴20年以上!会社員8年➡個人事業7期➡法人設立7期目に入りました。よろしくお願いいたします。
※連合隊は物件情報の精度向上に努めています:「物件情報に誤りがある」「成約済みである」などお気付きの点がございましたらこちらよりご連絡ください。
写真枚数:30枚
札幌テナント仲介専門の不動産会社です。
札幌市内で店舗・オフィス(事務所)・倉庫物件をお探しの際には、ぜひ弊社にもお声がけください。豊富な知識を持ったスタッフが、数ある不動産情報からあなたにピッタリの物件をお探し致します。