F-works南郷【1階:路面店】
ここに注目!【新築】🍎🍏南郷18丁目エリア🍎🍏1階:路面店の募集を開始しました😊内装スケルトンとなります。地下鉄:南郷18丁目駅から徒歩7分!
テナント専門【一棟貸し・路面店をお探しの方は、こちらをクリック!!】
| 賃料・費用 |
17万8,000円
(+管理費等 -円)
坪単価:約1.1万円/坪
敷17万8,000円(1ヶ月)礼17万8,000円(1ヶ月)仲17万8,000円
|
|---|---|
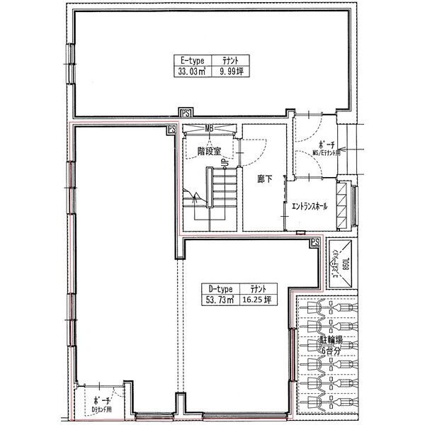
| 専有面積 | 53.73m² (16.25坪) |
| 住所 | 北海道札幌市白石区南郷通16丁目北10-21 |
| 交通 | 南郷18丁目駅(徒歩7分)|南郷13丁目駅(徒歩10分)道順を見る |
| 階/階建 | 路面 / 4階建 |
| 築年月 | 築1年未満(2026年1月) |
| 駐車場 |
なし
|
【WEB面談可】
空室確認、見学、詳細を知りたい方はこちら!
お電話の際は「連合隊の物件」とお伝えください。
情報掲載期限:あと18日(更新日 2025/12/21)
- 物件写真・概要
- 周辺地図
-
【WEB面談可】
空室確認、見学、詳細を知りたい方はこちら!おすすめポイント
- 路面店
- 複数路線利用可
- 商店街に面す
- 幹線道路沿い
- エアコン付
- 出店するなら…この業種がおすすめ!
- 飲食全般(重飲食含む)

- 喫茶・カフェ(軽飲食)

- バー・クラブ・スナック

- 小売・物販

- 美容・健康・介護

- 医療

- 教育・スクール

- 事務所

- アミューズメント

交通色がついているアイコンをクリックすると、本物件までの道順を見ることができます。
物件概要
所在階/建物の階建 1階 / 地上4階建 主要採光面 南西 構造 鉄筋コンクリート(RC)造 間取り 契約期間 2年間 権利金 住宅保険 出店推奨業種 美容・健康・介護、医療、事務所 出店不可業種 接道状況 角地 用途地域 - 近隣商業地域
その他費用 毎月の費用 - 24時間管理費:550円
一時金 - 保証委託料:17万8,550円
引渡し 相談(2026年2月1日入居可能) 管理人 無 取引態様 仲介 物件No 設備・特徴 - 複数路線利用可
- 商店街に面す
- 幹線道路沿い
- 給排水設備
- エアコン付
- 路面店
- 前面ガラス張り
備考 保証会社の利用が必須となります。 主な周辺施設色がついているアイコンをクリックすると、本物件までの道順を見ることができます。
-

この物件の担当者 宮本健太郎(ミヤモト ケンタロウ)
不動産業界歴20年以上!会社員8年➡個人事業7期➡法人設立7期目に入りました。よろしくお願いいたします。
※連合隊は物件情報の精度向上に努めています:「物件情報に誤りがある」「成約済みである」などお気付きの点がございましたらこちらよりご連絡ください。
写真枚数:11枚
札幌テナント仲介専門の不動産会社です。
札幌市内で店舗・オフィス(事務所)・倉庫物件をお探しの際には、ぜひ弊社にもお声がけください。豊富な知識を持ったスタッフが、数ある不動産情報からあなたにピッタリの物件をお探し致します。