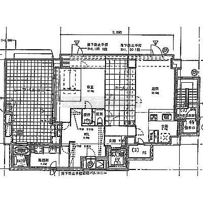
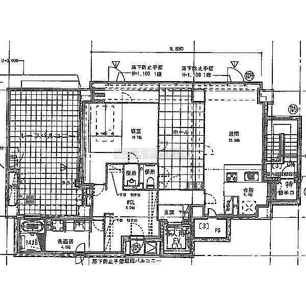
カワムラビル【3階ワンフロア/26.7坪】
ここに注目!🌸地下鉄/円山公園駅 徒歩3分の好立地🌸3階ワンフロア【26.7坪】+ルーフバルコニー付の広々とした空間🌸通りに面しており視認性も良好です🌸オフィス使用はもちろん多業種ご相談ください【居住を兼ねることも可能です】🌸内見可能 お気軽にご連絡ください🌸
🌸サイト未掲載物件や街のお得な情報も‼🌸ホームページはコチラをクリック🌸
| 賃料・費用 |
33万円
(+管理費等 2万2,000円)
坪単価:約1.2万円/坪
敷90万円礼なし仲33万円
保証金:なし
|
|---|---|
| 専有面積 | 88.39m² (26.73坪) |
| 住所 | 北海道札幌市中央区南二条西24丁目2-17 |
| 交通 | 円山公園駅(徒歩3分)|西18丁目駅(徒歩11分)|西28丁目駅(徒歩14分)|西15丁目駅(徒歩18分)|西線6条駅(徒歩18分)道順を見る |
| 階/階建 | 3階 / 3階建 |
| 築年月 | 築7年(2018年10月) |
| 駐車場 |
なし
|
【WEB面談可】
空室確認、見学、詳細を知りたい方はこちら!
お電話の際は「連合隊の物件」とお伝えください。
情報掲載期限:あと23日(更新日 2026/1/20)
- 物件写真・概要
- 周辺地図
-
【WEB面談可】
空室確認、見学、詳細を知りたい方はこちら!おすすめポイント
- 即入居可
- 駅徒歩3分以内
- 複数路線利用可
- 幹線道路沿い
- 男女別トイレ
- エアコン付
- 出店するなら…この業種がおすすめ!
- 飲食全般(重飲食含む)

- 喫茶・カフェ(軽飲食)

- バー・クラブ・スナック

- 小売・物販

- 美容・健康・介護

- 医療

- 教育・スクール

- 事務所

- アミューズメント

交通色がついているアイコンをクリックすると、本物件までの道順を見ることができます。
- 円山公園駅札幌市営地下鉄東西線駅近!徒歩3分(約240m)
- 西18丁目駅札幌市営地下鉄東西線徒歩11分(約880m)
- 西28丁目駅札幌市営地下鉄東西線徒歩14分(約1.1km)
- 西15丁目駅札幌市電山鼻線徒歩18分(約1.4km)
- 西線6条駅札幌市電山鼻線徒歩18分(約1.5km)
物件概要
所在階/建物の階建 3階(ワンフロア) / 地上3階建 主要採光面 構造 鉄筋コンクリート(RC)造 間取り バルコニー あり- ルーフバルコニー
契約期間 3年間 権利金 なし 住宅保険 出店推奨業種 美容・健康・介護、教育・スクール、事務所 出店不可業種 引渡し 即時 管理人 取引態様 仲介 物件No i01201 設備・特徴 - 複数路線利用可
- 幹線道路沿い
- 照明器具付
- ワンフロア物件
- 駅近物件
- エアコン付
- ガス設備
- 給排水設備
- 男女別トイレ
備考 円山エリア 視認性良好 駅近物件 ワンフロア物件 オフィス向き 多業種相談可 おすすめ 保証会社利用 🌸土日・祝日もご気軽にご連絡下さい🌸 主な周辺施設色がついているアイコンをクリックすると、本物件までの道順を見ることができます。
-

この物件の担当者 高橋 和洋(タカハシ カズヒロ)
テナント仲介一筋22年。今日もお客様の笑顔のために尽力致します(^^♪ テナントに関する事はどんな事でもご気軽にご連絡下さい。
ホームページはこちら北海道知事 石狩(2) 第8636号
桜エステート(株) 【WEB面談可】〒005-0006
TEL:011-590-1744
FAX:011-590-1743
営業時間:9:00~19:00
定休日:毎週 日曜・祝日
- 保証協会
- (公社)全国宅地建物取引業保証協会
※連合隊は物件情報の精度向上に努めています:「物件情報に誤りがある」「成約済みである」などお気付きの点がございましたらこちらよりご連絡ください。
写真枚数:24枚











お客様第一主義!すべては皆さまの笑顔のために・・ 桜エステート株式会社
古来より桜は日本の国花として様々な場面で人を笑顔にしている花です。また、桜の花言葉には『精神の美』という意味もあります。弊社の企業理念は【お客様の笑顔を大切に】とクリーンな企業体系【精神の美】です