N4.N.Y【一棟1-3階/108坪】
ここに注目!🌸桑園駅や北18条駅 徒歩圏内🌸北5条通りそばの一棟貸し【1-3階】🌸1階ピロティに駐車6~9台可能※車種による【一括貸/110,000円】🌸ピロティの高さ2.5mあり大型車も駐車可🌸床・壁・天井はビル側で仕上げ後引渡し🌸各種店舗やスクール・オフィスなど多業種ご相談下さい【前はオフィスとして使用】🌸内見可能 お気軽にご連絡下さい🌸
🌸物件情報たっぷり掲載🌸非公開物件や街のお得な情報も!🌸今すぐコチラをクリック🌸
この物件の契約期間は 5年間です。
定期借家物件は、賃貸借契約期間満了後、原則として契約の更新ができない物件です。再契約の可否については不動産会社にお問合せください。
| 賃料・費用 |
75万9,000円
(+管理費等 なし)
坪単価:約6,986円/坪
敷207万円礼なし仲75万9,000円
保証金:なし
|
|---|---|
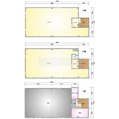
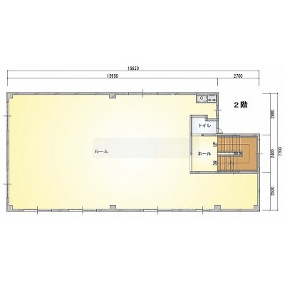
| 専有面積 | 359.19m² (108.65坪) |
| 住所 | 北海道札幌市中央区北四条西12丁目1-35 |
| 交通 | 札幌駅(徒歩16分)|西15丁目駅(徒歩13分)|西18丁目駅(徒歩16分)|桑園駅(徒歩11分)|西11丁目駅(徒歩11分)道順を見る |
| 階/階建 | 路面 / 3階建 |
| 築年月 | 築25年(2000年5月) |
| 駐車場 |
あり (1万1,000円/台) 駐車可能台数:9台
※敷地内セット契約で110,000円です。 |
【WEB面談可】
空室確認、見学、詳細を知りたい方はこちら!
お電話の際は「連合隊の物件」とお伝えください。
情報掲載期限:あと10日(更新日 2026/2/16)
- 物件写真・概要
- 周辺地図
-
【WEB面談可】
空室確認、見学、詳細を知りたい方はこちら!おすすめポイント
- 即入居可
- 路面店
- 複数路線利用可
- 幹線道路沿い
- 駐車2台以上可
- スケルトン
- 男女別トイレ
- 出店するなら…この業種がおすすめ!
- 飲食全般(重飲食含む)

- 喫茶・カフェ(軽飲食)

- バー・クラブ・スナック

- 小売・物販

- 美容・健康・介護

- 医療

- 教育・スクール

- 事務所

- アミューズメント

※出店不可の業種:飲食全般
交通色がついているアイコンをクリックすると、本物件までの道順を見ることができます。
- 札幌駅札幌市営地下鉄南北線、札幌市営地下鉄東豊線、JR札沼線、JR千歳線、JR函館本線徒歩16分(約1.3km)
- 西15丁目駅札幌市電山鼻線徒歩13分(約1.1km)
- 西18丁目駅札幌市営地下鉄東西線徒歩16分(約1.3km)
- 桑園駅JR札沼線、JR函館本線徒歩11分(約880m)
- 西11丁目駅札幌市電山鼻線、札幌市営地下鉄東西線徒歩11分(約880m)
物件概要
所在階/建物の階建 1階(一棟貸し【1-3階】) / 地上3階建 主要採光面 西 構造 鉄骨造 間取り 契約期間 定期借家(5年間) 権利金 なし 住宅保険 出店推奨業種 美容・健康・介護、教育・スクール、事務所 出店不可業種 飲食全般 引渡し 即時 管理人 取引態様 仲介 物件No H08251 設備・特徴 - 複数路線利用可
- 幹線道路沿い
- スケルトン
- 路面店
- 男女別トイレ
- 前面駐車場あり
- 駐車場多台数あり
- 路面店
備考 一棟貸し 路面テナント 視認性良好 幹線道路近郊 前面駐車場 駐車場多数可 オフィス向き 店舗向き 多業種相談可 おすすめ 保証会社利用 🌸土日・祝日もご気軽にご連絡下さい🌸 主な周辺施設色がついているアイコンをクリックすると、本物件までの道順を見ることができます。
-

この物件の担当者 高橋 和洋(タカハシ カズヒロ)
テナント仲介一筋22年。今日もお客様の笑顔のために尽力致します(^^♪ テナントに関する事はどんな事でもご気軽にご連絡下さい。
ホームページはこちら北海道知事 石狩(2) 第8636号
桜エステート(株) 【WEB面談可】〒005-0006
TEL:011-590-1744
FAX:011-590-1743
営業時間:9:00~19:00
定休日:毎週 日曜・祝日
- 保証協会
- (公社)全国宅地建物取引業保証協会
※連合隊は物件情報の精度向上に努めています:「物件情報に誤りがある」「成約済みである」などお気付きの点がございましたらこちらよりご連絡ください。
写真枚数:18枚











お客様第一主義!すべては皆さまの笑顔のために・・ 桜エステート株式会社
古来より桜は日本の国花として様々な場面で人を笑顔にしている花です。また、桜の花言葉には『精神の美』という意味もあります。弊社の企業理念は【お客様の笑顔を大切に】とクリーンな企業体系【精神の美】です