NORTH16BLD【路面/約60坪】
ここに注目!🌸地下鉄/環状通東駅 徒歩2分の好立地🌸東16丁目通りに面した路面店舗🌸前面ガラス張りで視認性良好です🌸前面に駐車場あり【台/14,500円】 7台まで相談可🌸各種店舗やスクール・オフィスなど多業種ご相談下さい🌸内見可能 お気軽にご連絡下さい🌸
🌸物件情報たっぷり掲載🌸非公開物件や街のお得な情報も!🌸今すぐコチラをクリック🌸
| 賃料・費用 |
78万9,800円
(+管理費等 なし)
坪単価:約1.3万円/坪
敷215万4,000円礼78万9,800円(1ヶ月)仲78万9,800円
保証金:なし
|
|---|---|
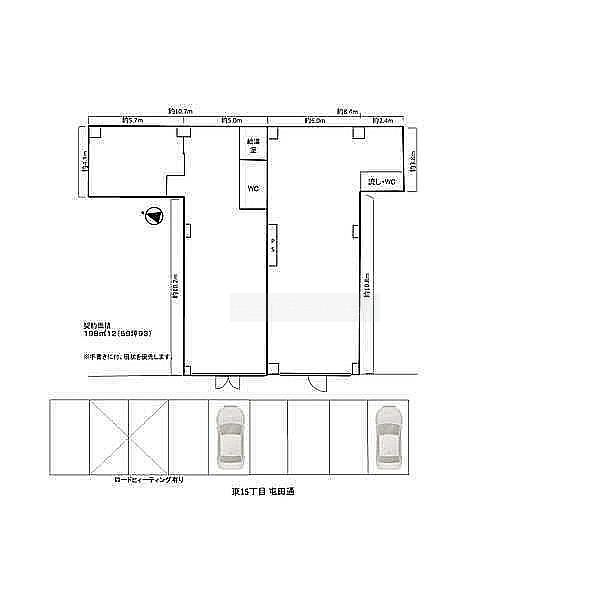
| 専有面積 | 197.76m² (59.82坪) |
| 住所 | 北海道札幌市東区北十六条東16丁目1-7 |
| 交通 | 環状通東駅(徒歩2分)|元町駅(徒歩15分)|東区役所前駅(徒歩17分)|北13条東駅(徒歩26分)|苗穂駅(徒歩30分) |
| 階/階建 | 路面 / 6階建 |
| 築年月 | 築30年(1995年3月) |
| 駐車場 |
あり (1万4,500円/台) 駐車可能台数:7台
|
【WEB面談可】
空室確認、見学、詳細を知りたい方はこちら!
お電話の際は「連合隊の物件」とお伝えください。
情報掲載期限:あと12日(更新日 2025/12/4)
- 物件写真・概要
- 周辺地図
-
【WEB面談可】
空室確認、見学、詳細を知りたい方はこちら!おすすめポイント
- 即入居可
- 路面店
- 駅徒歩3分以内
- 駅前立地
- 商店街に面す
- 幹線道路沿い
- 駐車2台以上可
- スケルトン
- エアコン付
- 出店するなら…この業種がおすすめ!
- 飲食全般(重飲食含む)

- 喫茶・カフェ(軽飲食)

- バー・クラブ・スナック

- 小売・物販

- 美容・健康・介護

- 医療

- 教育・スクール

- 事務所

- アミューズメント

交通色がついているアイコンをクリックすると、本物件までの道順を見ることができます。
- 環状通東駅札幌市営地下鉄東豊線駅近!徒歩2分(約130m)
- 元町駅札幌市営地下鉄東豊線徒歩15分(約1.2km)
- 東区役所前駅札幌市営地下鉄東豊線徒歩17分(約1.3km)
- 北13条東駅札幌市営地下鉄東豊線徒歩26分(約2.1km)
- 苗穂駅JR千歳線、JR函館本線徒歩30分(約2.4km)
物件概要
所在階/建物の階建 1階(路面店【C・D】) / 地上6階建 主要採光面 西 構造 鉄筋コンクリート(RC)造 間取り 契約期間 3年間 権利金 なし 住宅保険 出店推奨業種 小売・物販、美容・健康・介護、教育・スクール 出店不可業種 引渡し 即時 管理人 取引態様 仲介 物件No H04223 設備・特徴 - 駅前立地
- 商店街に面す
- 幹線道路沿い
- 給排水設備
- エアコン付
- スケルトン
- 路面店
- 前面ガラス張り
- 駅近物件
- 前面駐車場あり
- 路面店
備考 路面テナント 視認性良好 駅近物件 幹線道路沿い 前面駐車場 駐車場多数可 前面ガラス 店舗向き オフィス向き 多業種相談可 おすすめ 保証会社利用🌸土日・祝日もご気軽にご連絡下さい🌸 主な周辺施設色がついているアイコンをクリックすると、本物件までの道順を見ることができます。
-

この物件の担当者 高橋 和洋(タカハシ カズヒロ)
テナント仲介一筋21年。今日もお客様の笑顔のために尽力致します(^^♪ テナントに関する事はどんな事でもご気軽にご連絡下さい。
ホームページはこちら北海道知事 石狩(2) 第8636号
桜エステート(株) 【WEB面談可】〒005-0006
TEL:011-590-1744
FAX:011-590-1743
営業時間:9:00~19:00
定休日:毎週 日曜・祝日
- 保証協会
- (公社)全国宅地建物取引業保証協会
※連合隊は物件情報の精度向上に努めています:「物件情報に誤りがある」「成約済みである」などお気付きの点がございましたらこちらよりご連絡ください。
写真枚数:30枚











お客様第一主義!すべては皆さまの笑顔のために・・ 桜エステート株式会社
古来より桜は日本の国花として様々な場面で人を笑顔にしている花です。また、桜の花言葉には『精神の美』という意味もあります。弊社の企業理念は【お客様の笑顔を大切に】とクリーンな企業体系【精神の美】です