アスレチックテラス【1階/73.4坪】
ここに注目!🌸地下鉄/幌平橋駅・中島公園駅 徒歩圏内の好立地🌸向かいが中島公園で環境良好です🌸共用部リニューアル済みで美装です🌸各種店舗やスクール・オフィスなど多業種ご相談下さい🌸定期借家契約【年数応相談】🌸内見可能 お気軽にご連絡ください🌸
🌸物件情報たっぷり掲載🌸非公開物件や街のお得な情報も!🌸今すぐコチラをクリック🌸
| 賃料・費用 |
96万9,540円
(+管理費等 なし)
坪単価:約1.3万円/坪
敷1,057万6,800円礼なし仲96万9,540円
保証金:なし
|
|---|---|
| 専有面積 | 242.83m² (73.45坪) |
| 住所 | 北海道札幌市中央区南十三条西1丁目1-76 |
| 交通 | 幌平橋駅(徒歩4分)|中島公園駅(徒歩6分)|中島公園通駅(徒歩10分)|行啓通駅(徒歩10分)|中の島駅(徒歩10分) |
| 階/階建 | 路面 / 8階建(地下2階) |
| 築年月 | 築52年(1973年7月) |
| 駐車場 |
あり (2万2,000円/台) 駐車可能台数:8台
|
【WEB面談可】
空室確認、見学、詳細を知りたい方はこちら!
お電話の際は「連合隊の物件」とお伝えください。
情報掲載期限:あと29日(更新日 2025/12/19)
- 物件写真・概要
- 周辺地図
-
【WEB面談可】
空室確認、見学、詳細を知りたい方はこちら!おすすめポイント
- 即入居可
- 路面店
- 駅徒歩5分以内
- 駐車2台以上可
- スケルトン
- エアコン付
- 出店するなら…この業種がおすすめ!
- 飲食全般(重飲食含む)

- 喫茶・カフェ(軽飲食)

- バー・クラブ・スナック

- 小売・物販

- 美容・健康・介護

- 医療

- 教育・スクール

- 事務所

- アミューズメント

交通色がついているアイコンをクリックすると、本物件までの道順を見ることができます。
- 幌平橋駅札幌市営地下鉄南北線徒歩4分(約320m)
- 中島公園駅札幌市営地下鉄南北線徒歩6分(約480m)
- 中島公園通駅札幌市電山鼻線徒歩10分(約790m)
- 行啓通駅札幌市電山鼻線徒歩10分(約795m)
- 中の島駅札幌市営地下鉄南北線徒歩10分(約800m)
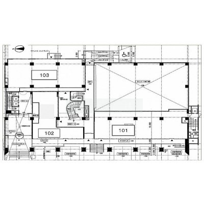
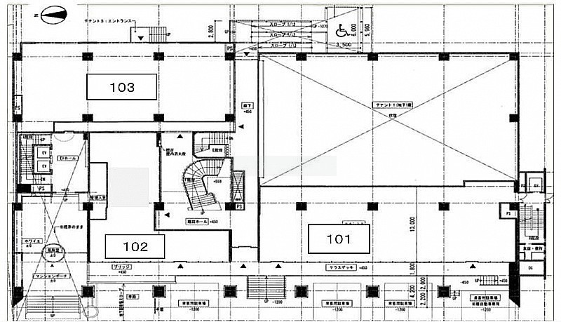
物件概要
所在階/建物の階建 1階(路面【103】) / 地上8階 地下2階建 主要採光面 構造 鉄骨鉄筋コンクリート(SRC)造 間取り 契約期間 権利金 なし 住宅保険 出店推奨業種 小売・物販、美容・健康・介護、教育・スクール 出店不可業種 引渡し 即時 管理人 取引態様 仲介 物件No H04211 設備・特徴 - エアコン付
- 個別空調
- スケルトン
- 路面店
- 路面店
備考 路面テナント 視認性良好 駅近物件 駐車場多数可 前面ガラス 店舗向き オフィス向き 多業種相談可 おすすめ 保証会社利用🌸土日・祝日もご気軽にご連絡下さい🌸 主な周辺施設色がついているアイコンをクリックすると、本物件までの道順を見ることができます。
-

この物件の担当者 高橋 和洋(タカハシ カズヒロ)
テナント仲介一筋21年。今日もお客様の笑顔のために尽力致します(^^♪ テナントに関する事はどんな事でもご気軽にご連絡下さい。
ホームページはこちら北海道知事 石狩(2) 第8636号
桜エステート(株) 【WEB面談可】〒005-0006
TEL:011-590-1744
FAX:011-590-1743
営業時間:9:00~19:00
定休日:毎週 日曜・祝日
- 保証協会
- (公社)全国宅地建物取引業保証協会
※連合隊は物件情報の精度向上に努めています:「物件情報に誤りがある」「成約済みである」などお気付きの点がございましたらこちらよりご連絡ください。
写真枚数:13枚











お客様第一主義!すべては皆さまの笑顔のために・・ 桜エステート株式会社
古来より桜は日本の国花として様々な場面で人を笑顔にしている花です。また、桜の花言葉には『精神の美』という意味もあります。弊社の企業理念は【お客様の笑顔を大切に】とクリーンな企業体系【精神の美】です