アルファスクエアドミニオン北18条【路面ワンフロア/42坪】
ここに注目!🌸地下鉄/北18条駅 徒歩3分の好立地🌸環状通りに面した2025年3月竣工の新築路面テナント🌸前面ガラス面大きく視認性良好です🌸スタートアップキャンペーン中【フリーレント豊富にサービス】&【北1条通りにてデジタルサイネージ広告2年無料】🌸飲食店含め各種店舗や医療・福祉・オフィスなど多業種ご相談下さい🌸内見可能 お気軽にお問い合わせください🌸
🌸物件情報たっぷり掲載🌸非公開物件や街のお得な情報も!🌸今すぐコチラをクリック🌸
| 賃料・費用 |
63万8,000円
(+管理費等 なし)
坪単価:約1.5万円/坪
敷174万円礼58万円仲63万8,000円
保証金:なし
|
|---|---|
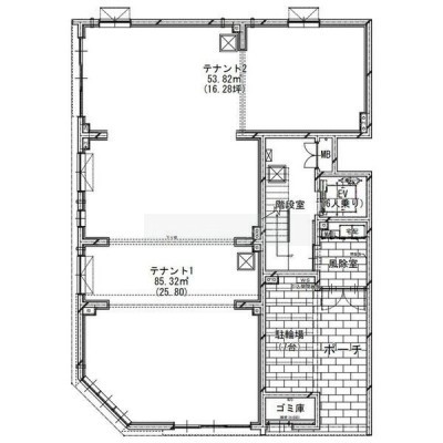
| 専有面積 | 139.14m² (42.08坪) |
| 住所 | 北海道札幌市北区北十八条西5丁目1-16 |
| 交通 | 北18条駅(徒歩3分)|北12条駅(徒歩12分)|北24条駅(徒歩15分)|北13条東駅(徒歩17分)|札幌駅(徒歩23分) |
| 階/階建 | 路面 / 4階建 |
| 築年月 | 新築(2025年3月) |
| 駐車場 |
なし
|
【WEB面談可】
空室確認、見学、詳細を知りたい方はこちら!
お電話の際は「連合隊の物件」とお伝えください。
情報掲載期限:あと10日(更新日 2025/11/25)
- 物件写真・概要
- 周辺地図
-
【WEB面談可】
空室確認、見学、詳細を知りたい方はこちら!おすすめポイント
- 即入居可
- 路面店
- 駅徒歩3分以内
- 幹線道路沿い
- スケルトン
- 出店するなら…この業種がおすすめ!
- 飲食全般(重飲食含む)

- 喫茶・カフェ(軽飲食)

- バー・クラブ・スナック

- 小売・物販

- 美容・健康・介護

- 医療

- 教育・スクール

- 事務所

- アミューズメント

交通色がついているアイコンをクリックすると、本物件までの道順を見ることができます。
- 北18条駅札幌市営地下鉄南北線駅近!徒歩3分(約220m)
- 北12条駅札幌市営地下鉄南北線徒歩12分(約960m)
- 北24条駅札幌市営地下鉄南北線徒歩15分(約1.2km)
- 北13条東駅札幌市営地下鉄東豊線徒歩17分(約1.4km)
- 札幌駅札幌市営地下鉄南北線、札幌市営地下鉄東豊線、JR札沼線、JR千歳線、JR函館本線徒歩23分(約1.9km)
物件概要
所在階/建物の階建 1階(路面テナント) / 地上4階建 主要採光面 構造 鉄筋コンクリート(RC)造 間取り 契約期間 権利金 なし 住宅保険 出店推奨業種 飲食全般(重飲食含む)、小売・物販、美容・健康・介護 出店不可業種 引渡し 即時 管理人 取引態様 仲介 物件No H04022 設備・特徴 - 幹線道路沿い
- スケルトン
- 路面店
- 前面ガラス張り
- 駅近物件
- 路面店
備考 路面テナント 視認性良好 駅近物件 幹線道路沿い 前面ガラス張り 店舗向き オフィス向き 多業種相談可 飲食店OK おすすめ 保証会社利用🌸土日・祝日もご気軽にご連絡下さい🌸 主な周辺施設色がついているアイコンをクリックすると、本物件までの道順を見ることができます。
-

この物件の担当者 高橋 和洋(タカハシ カズヒロ)
テナント仲介一筋21年。今日もお客様の笑顔のために尽力致します(^^♪ テナントに関する事はどんな事でもご気軽にご連絡下さい。
ホームページはこちら北海道知事 石狩(2) 第8636号
桜エステート(株) 【WEB面談可】〒005-0006
TEL:011-590-1744
FAX:011-590-1743
営業時間:9:00~19:00
定休日:毎週 日曜・祝日
- 保証協会
- (公社)全国宅地建物取引業保証協会
※連合隊は物件情報の精度向上に努めています:「物件情報に誤りがある」「成約済みである」などお気付きの点がございましたらこちらよりご連絡ください。
写真枚数:16枚











お客様第一主義!すべては皆さまの笑顔のために・・ 桜エステート株式会社
古来より桜は日本の国花として様々な場面で人を笑顔にしている花です。また、桜の花言葉には『精神の美』という意味もあります。弊社の企業理念は【お客様の笑顔を大切に】とクリーンな企業体系【精神の美】です