ビバシティー高天
ここに注目!☆中心部のマンションです!☆☆角部屋☆☆全室エアコン設置済☆☆2023年にキッチンリフォーム済☆☆トランクルームあり☆☆都市ガス☆☆温水洗浄便座☆☆追い炊き機能付き☆☆浴室に窓☆☆オートロック☆☆システムキッチン☆☆お問い合わせはお気軽にみらいハウジングまで☆☆☆
| 賃料・費用 |
14万5,000円(+管理費等 -円)
敷14万5,000円(1ヶ月)礼なし仲15万9,500円
|
|---|---|
| 間取・専有 |
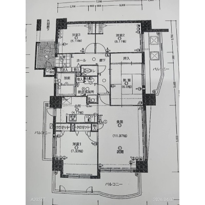
4LDK(84m²)└ LDK14帖 洋室6帖 洋室7帖 洋室5帖 和室6帖
|
| 住所 | 長崎県佐世保市高天町11-21 |
| 交通 | 中佐世保駅(徒歩9分)|「勝富」停(徒歩5分)道順を見る |
| 築年月 | 築26年(1999年11月) |
| 駐車場 |
あり 駐車可能台数:1台
|
空室確認、見学、詳細を知りたい方はこちら!
お電話の際は「連合隊の物件」とお伝えください。
情報掲載期限:あと20日(更新日 2026/4/7)
- 物件写真・概要
- 周辺地図
-
空室確認、見学、詳細を知りたい方はこちら!
おすすめポイント
- バス/トイレ別
- オートロック
- 2階以上
- 都市ガス
- 室内洗濯機置場
- 駐車場あり
- エアコン付
- 独立洗面台
- 追い焚き風呂
- ペット相談可
- デザイナーズ
- 敷金・礼金0円
- 近くて便利!徒歩5分以内にある施設
- 3分
3分- 周辺施設を地図で確認
交通色がついているアイコンをクリックすると、本物件までの道順を見ることができます。
- 中佐世保駅西九州線徒歩9分(約715m)
- 「勝富」停徒歩5分
物件概要
所在階/建物の階建 5階(504) / 地上15階建 総戸数 主要採光面 構造 鉄筋コンクリート(RC)造 バルコニー あり契約期間 2年間 住宅保険 お問合せください その他費用 一時金 - 初回保証料:7万2,500円
入居可能時期 2026年5月初旬 管理人 取引態様 仲介 物件No 設備・特徴 - 納戸・トランクルーム
- 都市ガス
- エアコン付
- オートロック
- 温水洗浄トイレ
- システムキッチン
- 角部屋
- 追い焚き風呂
- 浴室に窓
備考 学区色がついているアイコンをクリックすると、本物件までの道順を見ることができます。
主な周辺施設色がついているアイコンをクリックすると、本物件までの道順を見ることができます。
-
※連合隊は物件情報の精度向上に努めています:「物件情報に誤りがある」「成約済みである」などお気付きの点がございましたら こちら よりご連絡ください。
写真枚数:29枚
【防衛省共済組合加盟店】株式会社みらいハウジング
★土曜・日曜・祝日営業してます★ 当店は佐世保五番街徒歩3分にある不動産です。☆地域密着☆お客様一人一人とじっくり向き合い、納得いくお部屋探しを精一杯させて頂きます!ご相談、内覧予約お待ちしてます(^^)