ビレッジハウス佐々末永1号棟
ここに注目!☆敷金礼金ゼロ☆ ☆仲介手数料不要で初期費用が抑えられますね☆ ☆日当たり良好☆ ☆ペット相談可☆ ☆プロパンガス☆ ☆温水洗浄便座☆ ☆追い炊き機能付き☆ ☆お問い合わせはお気軽にみらいハウジングまで☆
| 賃料・費用 |
5万5,700円(+管理費等 -円)
敷なし礼なし仲なし
|
|---|---|
| 間取・専有 |
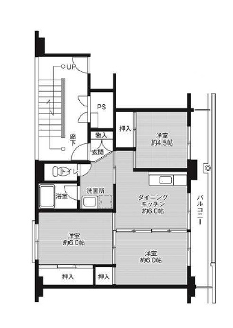
3DK(53.08m²)└ 洋室4.5帖 洋室6帖 洋室6帖 DK6帖
|
| 住所 | 長崎県北松浦郡佐々町口石免1335-2 |
| 交通 | 小浦駅(徒歩18分)道順を見る |
| 築年月 | 築34年(1991年3月) |
| 駐車場 |
あり (3,300円/台) 駐車可能台数:2台
|
空室確認、見学、詳細を知りたい方はこちら!
お電話の際は「連合隊の物件」とお伝えください。
情報掲載期限:あと13日(更新日 2025/12/8)
- 物件写真・概要
- 周辺地図
-
空室確認、見学、詳細を知りたい方はこちら!
おすすめポイント
- バス/トイレ別
- オートロック
- 2階以上
- 都市ガス
- 室内洗濯機置場
- 駐車2台以上可
- エアコン付
- 独立洗面台
- 追い焚き風呂
- ペット相談可
- デザイナーズ
- 敷金・礼金0円
交通色がついているアイコンをクリックすると、本物件までの道順を見ることができます。
物件概要
所在階/建物の階建 1階(101) / 地上5階建 総戸数 主要採光面 南 構造 鉄筋コンクリート(RC)造 バルコニー あり契約期間 2年間 住宅保険 お問合せください 入居可能時期 2025年11月中旬 管理人 取引態様 仲介 物件No 設備・特徴 - ペット相談可
- LPガス
- 温水洗浄トイレ
- 日当り良好
- 追い焚き風呂
備考 ●ペット飼育時敷金1カ月必要です 学区色がついているアイコンをクリックすると、本物件までの道順を見ることができます。
主な周辺施設色がついているアイコンをクリックすると、本物件までの道順を見ることができます。
-
※連合隊は物件情報の精度向上に努めています:「物件情報に誤りがある」「成約済みである」などお気付きの点がございましたら こちら よりご連絡ください。
写真枚数:7枚
【防衛省共済組合加盟店】株式会社みらいハウジング
★土曜・日曜・祝日営業してます★ 当店は佐世保五番街徒歩3分にある不動産です。☆地域密着☆お客様一人一人とじっくり向き合い、納得いくお部屋探しを精一杯させて頂きます!ご相談、内覧予約お待ちしてます(^^)