エスポワール神田F棟
ここに注目!☆★築浅★☆ 近くにディスカウントショップやホームセンターなどがあり、利便性が良いです(^^)/ 内覧ご希望、ご質問などお気軽に佐々不動産まで!!
| 賃料・費用 |
6万2,000円(+管理費等 -円)
敷6万2,000円(1ヶ月)礼6万2,000円(1ヶ月)仲6万8,200円
保証金:なし/敷引・償却金:なし
|
|---|---|
| 間取・専有 |
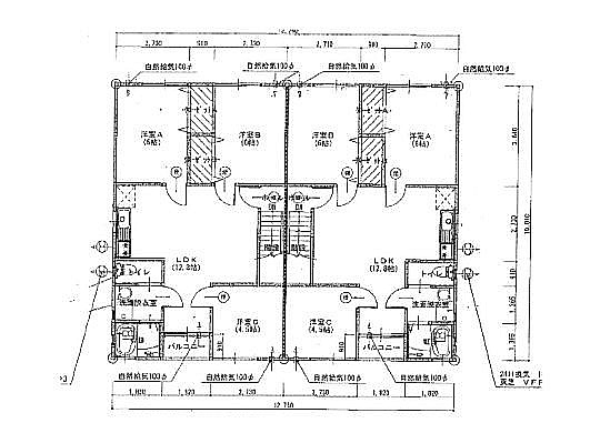
2LDK(53.08m²)└ 1階:洋室6帖 洋室6帖 LDK11.1帖
|
| 住所 | 長崎県北松浦郡佐々町神田免100番地 |
| 交通 | 神田駅(徒歩6分)|神田駅(車で1分)道順を見る |
| 築年月 | 築5年(2020年4月) |
| 駐車場 |
駐車可能台数:2台
|
【WEB面談可】
空室確認、見学、詳細を知りたい方はこちら!
お電話の際は「連合隊の物件」とお伝えください。
情報掲載期限:あと7日(更新日 2025/11/22)
- 物件写真・概要
- 周辺地図
-
【WEB面談可】
空室確認、見学、詳細を知りたい方はこちら!おすすめポイント
- バス/トイレ別
- オートロック
- 2階以上
- 都市ガス
- 室内洗濯機置場
- 駐車場あり
- エアコン付
- 独立洗面台
- 追い焚き風呂
- ペット相談可
- デザイナーズ
- 敷金・礼金0円
交通色がついているアイコンをクリックすると、本物件までの道順を見ることができます。
物件概要
所在階/建物の階建 1階(102) / 地上2階建 総戸数 4戸 主要採光面 南 構造 木造 契約期間 2年間 更新料/更新手数料 なし 住宅保険 1万8,000円(2年間) その他費用 一時金 - 家賃保証料:6万2,000円
入居可能時期 2025年12月中旬 管理人 取引態様 仲介 物件No 設備・特徴 - バリアフリー
- バス/トイレ別
- 温水洗浄トイレ
- シャワー付洗面化粧台
- 追い焚き風呂
- ガスコンロ
- コンロ3口以上
- LPガス
- エアコン付
- 室内洗濯機置場
備考 ※家賃保証加入条件有 初回のみ賃料の100% 学区色がついているアイコンをクリックすると、本物件までの道順を見ることができます。
主な周辺施設色がついているアイコンをクリックすると、本物件までの道順を見ることができます。
-
※連合隊は物件情報の精度向上に努めています:「物件情報に誤りがある」「成約済みである」などお気付きの点がございましたらこちらよりご連絡ください。
写真枚数:18枚
1階:2LDKタイプ
2階:3LDKタイプ
佐々町・佐世保の不動産売買・賃貸は、地域密着の佐々不動産へ。
佐世保市のベッドタウン「佐々町」を拠点に、北松浦郡エリア全域で不動産仲介・売買を行っています。地域に根ざした情報力と迅速な対応で、お客様の理想に最も近い物件をご提案。現地案内は予約不要で即対応いたします。住まい探しから売却相談まで、地元密着の「顔が見える不動産」として、安心と信頼のサポートをお約束します。