フロンティア佐世保
ここに注目!中心部事務所向けテナントです。 2025年6月末にEV新設&リノベーション予定です。 駐車場契約できます。(機械式駐車場により車種制限あり) ※開館時間要ご相談
| 賃料・費用 |
22万4,400円
(+管理費等 -円)
坪単価:約1.1万円/坪
敷122万4,000円礼なし仲22万4,400円
|
|---|---|
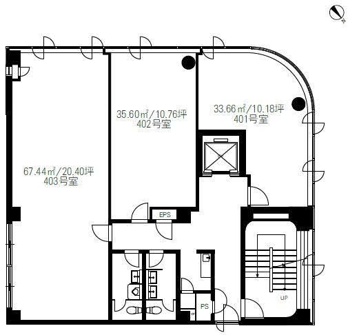
| 専有面積 | 67.44m² (20.4坪) |
| 住所 | 長崎県佐世保市光月町4-14 |
| 交通 | 佐世保駅(徒歩15分)|佐世保中央駅(徒歩4分)|中佐世保駅(徒歩2分)道順を見る |
| 階/階建 | 4階 |
| 築年月 | 築35年(1990年7月) |
| 駐車場 |
あり (1万8,000円/台)
機械式駐車場 長4,800㎜幅1,800㎜高1,550㎜重1,600㎏ |
【WEB面談可】
空室確認、見学、詳細を知りたい方はこちら!
お電話の際は「連合隊の物件」とお伝えください。
情報掲載期限:あと27日(更新日 2025/12/12)
- 物件写真・概要
- 周辺地図
-
【WEB面談可】
空室確認、見学、詳細を知りたい方はこちら!おすすめポイント
- 駅徒歩3分以内
- 駐車場あり
- エアコン付
- OAフロア
交通色がついているアイコンをクリックすると、本物件までの道順を見ることができます。
物件概要
所在階/建物の階建 4階(403) 主要採光面 構造 鉄筋コンクリート(RC)造 間取り 契約期間 2年間 権利金 住宅保険 お問合せください その他費用 一時金 - 鍵交換料:1万6,500円
引渡し 相談(2025年7月1日) 管理人 取引態様 仲介 物件No 設備・特徴 - エレベーター
- OAフロア
- エアコン付
- 個別空調
- 男女別トイレ(共用部)
備考 ※写真・間取図と実際の室内仕様が異なる場合は、現況優先とさせて頂きます。 ※保証会社加入必須:契約時総賃料90%+年次更新料10% ※館銘板作成費がかかります。 ※水光熱費は検診の上、ご請求となります。 ※解約予告は6か月前となります。 主な周辺施設色がついているアイコンをクリックすると、本物件までの道順を見ることができます。
-
※連合隊は物件情報の精度向上に努めています:「物件情報に誤りがある」「成約済みである」などお気付きの点がございましたらこちらよりご連絡ください。
写真枚数:25枚
佐世保でのお部屋探しは第百不動産へお任せください!!
当社は佐世保エリアを中心に賃貸・売買・仲介・管理・買取などを展開しています。 なくてはならない地域No.1企業へと成長するため、心から「ありがとう」と、言ってもらえる場面を大切に、努力してまいります。