ポレスターセントラルシティ佐世保
ここに注目!人気の分譲賃貸マンションが出ました!駐車場1台込み。8階で眺望良好。佐世保中心部のため佐世保駅や5番街等徒歩でアクセス可能。ベランダからの佐世保川向かいには遊具充実の公園が広がっています。
| 賃料・費用 |
13万5,000円(+管理費等 -円)
敷13万5,000円(1ヶ月)礼13万5,000円(1ヶ月)仲14万8,500円
|
|---|---|
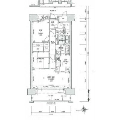
| 間取・専有 |
2LDK(69.43m²)└ LD13帖 洋室6.6帖 和室4.5帖 K4.1帖
|
| 住所 | 長崎県佐世保市島地町10-15 |
| 交通 | 佐世保駅(徒歩12分)|中佐世保駅(徒歩10分)|佐世保中央駅(徒歩8分)道順を見る |
| 築年月 | 築15年(2010年8月) |
| 駐車場 |
あり 駐車可能台数:1台
|
【WEB面談可】
空室確認、見学、詳細を知りたい方はこちら!
お電話の際は「連合隊の物件」とお伝えください。
情報掲載期限:あと25日(更新日 2026/3/3)
- 物件写真・概要
- 周辺地図
-
おすすめポイント
- バス/トイレ別
- オートロック
- 2階以上
- 都市ガス
- 室内洗濯機置場
- 駐車場あり
- エアコン付
- 独立洗面台
- 追い焚き風呂
- ペット相談可
- デザイナーズ
- 敷金・礼金0円
- 近くて便利!徒歩5分以内にある施設
- 3分
3分- 3分
3分- 周辺施設を地図で確認
交通色がついているアイコンをクリックすると、本物件までの道順を見ることができます。
物件概要
所在階/建物の階建 8階(802) / 地上14階 地下1階建 総戸数 主要採光面 西 構造 鉄筋コンクリート(RC)造 契約期間 2年間 住宅保険 その他費用 毎月の費用 - くらサス会員費:2,000円
一時金 - ペット飼育時礼金:13万5,000円
入居可能時期 相談(2026年4月中旬退去予定) 管理人 取引態様 仲介 物件No 設備・特徴 - 分譲タイプ
- 室内洗濯機置場
- バス/トイレ別
- 温水洗浄トイレ
- 独立洗面台
- 追い焚き風呂
- コンロ3口以上
- システムキッチン
- カウンターキッチン
- エアコン付
- オートロック
- モニタ付インターホン
備考 ※写真・間取図と実際の室内仕様が異なる場合は、現況優先とさせて頂きます。 ※退去時に清掃代がかかります。 ※保証会社加入必須:契約時総賃料50%+月額保証料(月額総賃料1%) ※1年以内の解約の場合、短期解約違約金が発生します。 学区色がついているアイコンをクリックすると、本物件までの道順を見ることができます。
主な周辺施設色がついているアイコンをクリックすると、本物件までの道順を見ることができます。
-
※連合隊は物件情報の精度向上に努めています:「物件情報に誤りがある」「成約済みである」などお気付きの点がございましたらこちらよりご連絡ください。
写真枚数:18枚
佐世保でのお部屋探しは第百不動産へお任せください!!
当社は佐世保エリアを中心に賃貸・売買・仲介・管理・買取などを展開しています。 なくてはならない地域No.1企業へと成長するため、心から「ありがとう」と、言ってもらえる場面を大切に、努力してまいります。