R-fino N17
ここに注目!「R-fino N17」は、札幌市東区に位置する、2023年1月築のマンションです。 広々とした47.2㎡の1LDKは、お二人での新生活やゆったり過ごしたい方にもぴったり。LDKは14.6帖と開放感があり、キッチン横にはパントリー、洋室にはウォークインクローゼット、玄関にはシューズインクローゼットと、収納が大変充実しているのが嬉しいポイントです。 オートロックや防犯カメラ、モニター付きインターホンでセキュリティも安心。宅配ボックスも備わり、非接触で荷物の受け取りが可能です。インターネット利用料無料なので、月々の費用を抑えて快適なネットライフをお楽しみいただけます。 バス・トイレ別、独立洗面台、温水洗浄トイレといった水回り設備も充実。北海道の冬に嬉しいロードヒーティングやガス暖房も完備しています。敷金・礼金0円で、初期費用を抑えてご入居いただけますよ。 徒歩2分にコンビニ、徒歩7分にスーパーがあり、お買い物にも便利。小学校・中学校も徒歩5分圏内で、子育て世代にも安心の環境です。デザイン性の高い空間で、快適な毎日を始めてみませんか?
| 賃料・費用 |
7万9,000円(+管理費等 6,000円)
敷なし礼なし仲なし
保証金:なし/敷引・償却金:なし
|
|---|---|
| 間取・専有 |
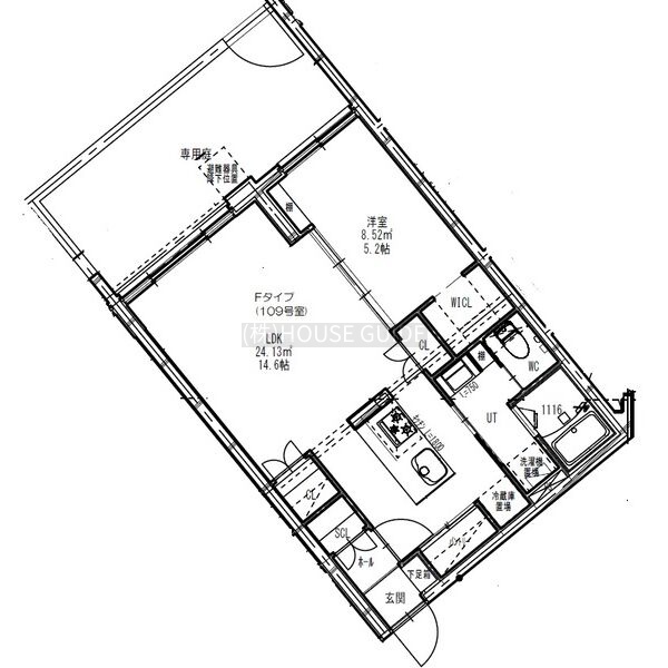
1LDK(47.2m²)└ 1階:LDK14.6帖 洋室5.2帖
|
| 住所 | 北海道札幌市東区北十七条東3丁目2番23号 |
| 交通 | 北18条駅(徒歩10分)|北13条東駅(徒歩11分)|東区役所前駅(徒歩14分)道順を見る |
| 築年月 | 築3年(2023年1月) |
| 駐車場 |
空き待ち
|
【WEB面談可】
空室確認、見学、詳細を知りたい方はこちら!
お電話の際は「連合隊の物件」とお伝えください。
情報掲載期限:あと12日(更新日 2026/2/1)
- 物件写真・概要
- 周辺地図
-
【WEB面談可】
空室確認、見学、詳細を知りたい方はこちら!おすすめポイント
- バス/トイレ別
- オートロック
- 2階以上
- 都市ガス
- 室内洗濯機置場
- 駐車場あり
- エアコン付
- 独立洗面台
- 追い焚き風呂
- ペット相談可
- デザイナーズ
- 敷・礼・保0円
- 近くて便利!徒歩5分以内にある施設
- 2分
2分- 周辺施設を地図で確認
交通色がついているアイコンをクリックすると、本物件までの道順を見ることができます。
物件概要
所在階/建物の階建 1階(109) / 地上5階建 総戸数 40戸 主要採光面 北西 構造 鉄筋コンクリート(RC)造 バルコニー あり- ウッドデッキ・テラス
契約期間 更新料/更新手数料 なし 住宅保険 2万円(2年間) その他費用 毎月の費用 - 24時間管理料:1,100円
- 町内会費:250円
一時金 - 水廻り消毒料:1万6,500円
入居可能時期 即時 管理人 取引態様 仲介 物件No 設備・特徴 - エレベーター
- ロードヒーティング
- 駐輪場
- デザイナーズ
- 室内洗濯機置場
- ウォークインクローゼット
- シューズボックス
- バス/トイレ別
- 温水洗浄トイレ
- 独立洗面台
- コンロ2口
- システムキッチン
- LPガス
- エアコン付
- ガス暖房
- オートロック
- モニタ付インターホン
- 防犯カメラ
- 宅配BOX
- インターネット利用料無料
- BSアンテナ
- CSアンテナ
- 2人入居相談可(ルームシェア含む)
- シニア相談可
- シューズインクローゼット
- 角部屋
備考 ※個別玄関まで非接触(オートロック・郵便受・宅配ボックス・エレベーター) ※禁煙特約有。 キッチン横にパントリー、洋室内にウォークインクロゼット、玄関にシューズクロゼット等、収納設備が充実したデザイナーズマンションです。 学区色がついているアイコンをクリックすると、本物件までの道順を見ることができます。
主な周辺施設色がついているアイコンをクリックすると、本物件までの道順を見ることができます。
-
ホームページはこちら
北海道知事 石狩(2) 第8492号
(株)HOUSE GUIDE 【WEB面談可】〒001-0020
北海道札幌市北区北二十条西4丁目2番37号
ハピネス北20条 203号室TEL:011-300-8080
FAX:011-300-8081
営業時間:10:00~18:00
定休日:毎週 水曜
- 保証協会
- (公社)全国宅地建物取引業保証協会
- 公正取引協議会
- (一社)北海道不動産公正取引協議会
※連合隊は物件情報の精度向上に努めています:「物件情報に誤りがある」「成約済みである」などお気付きの点がございましたらこちらよりご連絡ください。
写真枚数:14枚
★はじめまして。HOUSE GUIDEです!★札幌市内・近郊のお部屋探しなら当店へ!
弊社はまだまだ小さな不動産会社です。少人数で営業している為、事務所にいない事が多いのでお部屋探しの場合は直接お電話いただけると幸いです。1件1件丁寧に対応させて頂きます。どうぞ宜しくお願いします!