フジヒロ北5条ビル
ここに注目!【札幌市中央区/西28丁目】 円山エリア、1階路面店に空きがでました!駐車場2台空きあります。 地下鉄東西線「西28丁目」駅から徒歩5分です! 駐車場も確保できます!業種等なんでもご相談下さい!
| 賃料・費用 |
33万円
(+管理費等 -円)
坪単価:約1.5万円/坪
敷90万円礼なし仲33万円
保証金:なし
|
|---|---|
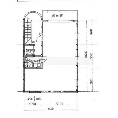
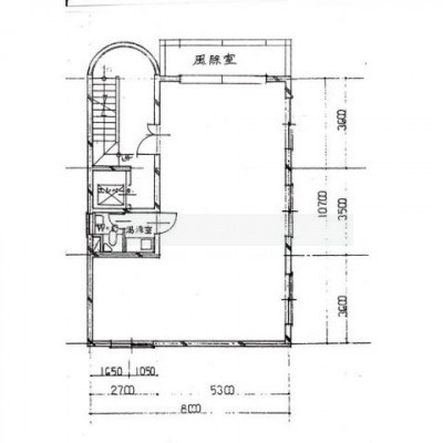
| 専有面積 | 71.27m² (21.55坪) |
| 住所 | 北海道札幌市中央区北五条西25丁目 |
| 交通 | 西28丁目駅(徒歩5分)|円山公園駅(徒歩11分) |
| 階/階建 | 1階 / 4階建 |
| 築年月 | 築34年(1991年8月) |
| 駐車場 |
あり (1万6,500円/台) 駐車可能台数:2台
|
空室確認、見学、詳細を知りたい方はこちら!
お電話の際は「連合隊の物件」とお伝えください。
情報掲載期限:本日まで(更新日 2026/3/31)
- 物件写真・概要
- 周辺地図
-
空室確認、見学、詳細を知りたい方はこちら!
おすすめポイント
- 駅徒歩5分以内
- 駐車2台以上可
交通色がついているアイコンをクリックすると、本物件までの道順を見ることができます。
物件概要
所在階/建物の階建 1階(1F号室) / 地上4階建 主要採光面 構造 鉄筋コンクリート(RC)造 間取り 契約期間 お問合せください 権利金 住宅保険 出店推奨業種 出店不可業種 引渡し 相談 管理人 取引態様 仲介 物件No 設備・特徴 - 照明器具付
- その他:電気・ガス・照明(残置物)・給排水・自動ドア・トイレ(残置)・タイルカーペット
備考 募集条件:店舗、事務所、医療関係、その他 -
ホームページはこちら
北海道知事 石狩(5) 第6814号
(株)エムズ テナント事業部
※連合隊は物件情報の精度向上に努めています:「物件情報に誤りがある」「成約済みである」などお気付きの点がございましたらこちらよりご連絡ください。
写真枚数:11枚
札幌市内、近郊のテナントのことならエムズへ!
札幌市内はもちろん、札幌市近郊のテナントを取り扱っております!連合隊には載っていない物件も多数取り揃えておりますので、ぜひお問い合わせください!