S-BUILDING札幌大通?
ここに注目!【オフィス向け】【大通エリア】【徒歩3分!!】 大通中心部に2024年築のとても綺麗でお洒落なビルです。 お早目のご連絡お待ちしてます。 業種、諸費用なんでもご相談ください。
| 賃料・費用 |
139万6,340円
(+管理費等 -円)
坪単価:約2.4万円/坪
敷1,523万2,800円礼なし仲139万6,340円
保証金:なし
|
|---|---|
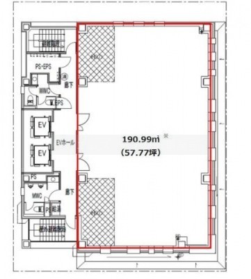
| 専有面積 | 190.99m² (57.77坪) |
| 住所 | 北海道札幌市中央区大通西5丁目 |
| 交通 | 大通駅(徒歩3分) |
| 階/階建 | 3階 / 10階建 |
| 築年月 | |
| 駐車場 |
なし
|
空室確認、見学、詳細を知りたい方はこちら!
お電話の際は「連合隊の物件」とお伝えください。
情報掲載期限:あと13日(更新日 2025/11/30)
- 物件写真・概要
- 周辺地図
-
空室確認、見学、詳細を知りたい方はこちら!
おすすめポイント
- 駅徒歩3分以内
交通色がついているアイコンをクリックすると、本物件までの道順を見ることができます。
物件概要
所在階/建物の階建 3階(3階) / 地上10階建 主要採光面 構造 鉄筋コンクリート(RC)造 間取り 契約期間 お問合せください 権利金 住宅保険 引渡し 相談 管理人 取引態様 仲介 物件No 設備・特徴 - その他:電気
備考 募集条件:事務所 -
ホームページはこちら
北海道知事 石狩(5) 第6814号
(株)エムズ テナント事業部
※連合隊は物件情報の精度向上に努めています:「物件情報に誤りがある」「成約済みである」などお気付きの点がございましたらこちらよりご連絡ください。
写真枚数:2枚
札幌市内、近郊のテナントのことならエムズへ!
札幌市内はもちろん、札幌市近郊のテナントを取り扱っております!連合隊には載っていない物件も多数取り揃えておりますので、ぜひお問い合わせください!