北9条西22丁目1階区画(倉庫事務所)
ここに注目!地下鉄「二十四軒駅」徒歩圏内 駐車スペース建物駐車場賃料込です 条件・業種等はお問い合わせ下さい。広々とした専有面積471.15?(約142坪)を誇る、事務所付きの貸倉庫です。鉄筋コンクリート造 駐車場敷地100
| 賃料・費用 |
66万円
(+管理費等 -円)
坪単価:約4,609円/坪
敷200万円礼なし仲66万円
保証金:なし
|
|---|---|
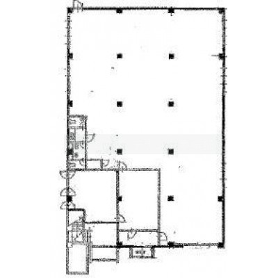
| 専有面積 | 473.4m² (143.2坪) |
| 住所 | 北海道札幌市中央区北九条西22丁目 |
| 交通 | 二十四軒駅(徒歩9分)|西28丁目駅(徒歩12分) |
| 階/階建 | 1階 / 2階建 |
| 築年月 | |
| 駐車場 |
あり (無料) 駐車可能台数:20台
|
空室確認、見学、詳細を知りたい方はこちら!
お電話の際は「連合隊の物件」とお伝えください。
情報掲載期限:あと15日(更新日 2025/11/30)
- 物件写真・概要
- 周辺地図
-
空室確認、見学、詳細を知りたい方はこちら!
おすすめポイント
- 駐車2台以上可
交通色がついているアイコンをクリックすると、本物件までの道順を見ることができます。
物件概要
所在階/建物の階建 1階(1F) / 地上2階建 主要採光面 構造 間取り 契約期間 お問合せください 権利金 住宅保険 出店推奨業種 出店不可業種 引渡し 2026年1月退去 管理人 取引態様 仲介 物件No 設備・特徴 - その他:電気・ガス・給湯(残置物)・トイレ
備考 募集条件:貸倉庫、その他 -
ホームページはこちら
北海道知事 石狩(5) 第6814号
(株)エムズ テナント事業部
※連合隊は物件情報の精度向上に努めています:「物件情報に誤りがある」「成約済みである」などお気付きの点がございましたらこちらよりご連絡ください。
写真枚数:8枚
札幌市内、近郊のテナントのことならエムズへ!
札幌市内はもちろん、札幌市近郊のテナントを取り扱っております!連合隊には載っていない物件も多数取り揃えておりますので、ぜひお問い合わせください!